1062

klanten beoordelen ons met een

9,3

!
Mail ons
0
Meer informatie?
Venster sluiten ×
Meer informatie?
Mijn favorieten
Je hebt geen favorieten.
Venster sluiten ×

Zoeken

Gerald de Jong
Meer informatie?
0
1
2
3
4
5
6
7
8
9
10
11
4001 AR TIEL

Waterstraat 54

prijs op aanvraag
Lines Lines
Gerald de Jong
Binnenkijken in jouw droomwoning?

Gerald helpt je graag met al jouw vragen over de woning.

0345-229300 info@vanekerenkuiper.nl
Bewaren

BINNENKORT IN DE VERKOOP!

Lees meer

Omschrijving

BINNENKORT IN DE VERKOOP!

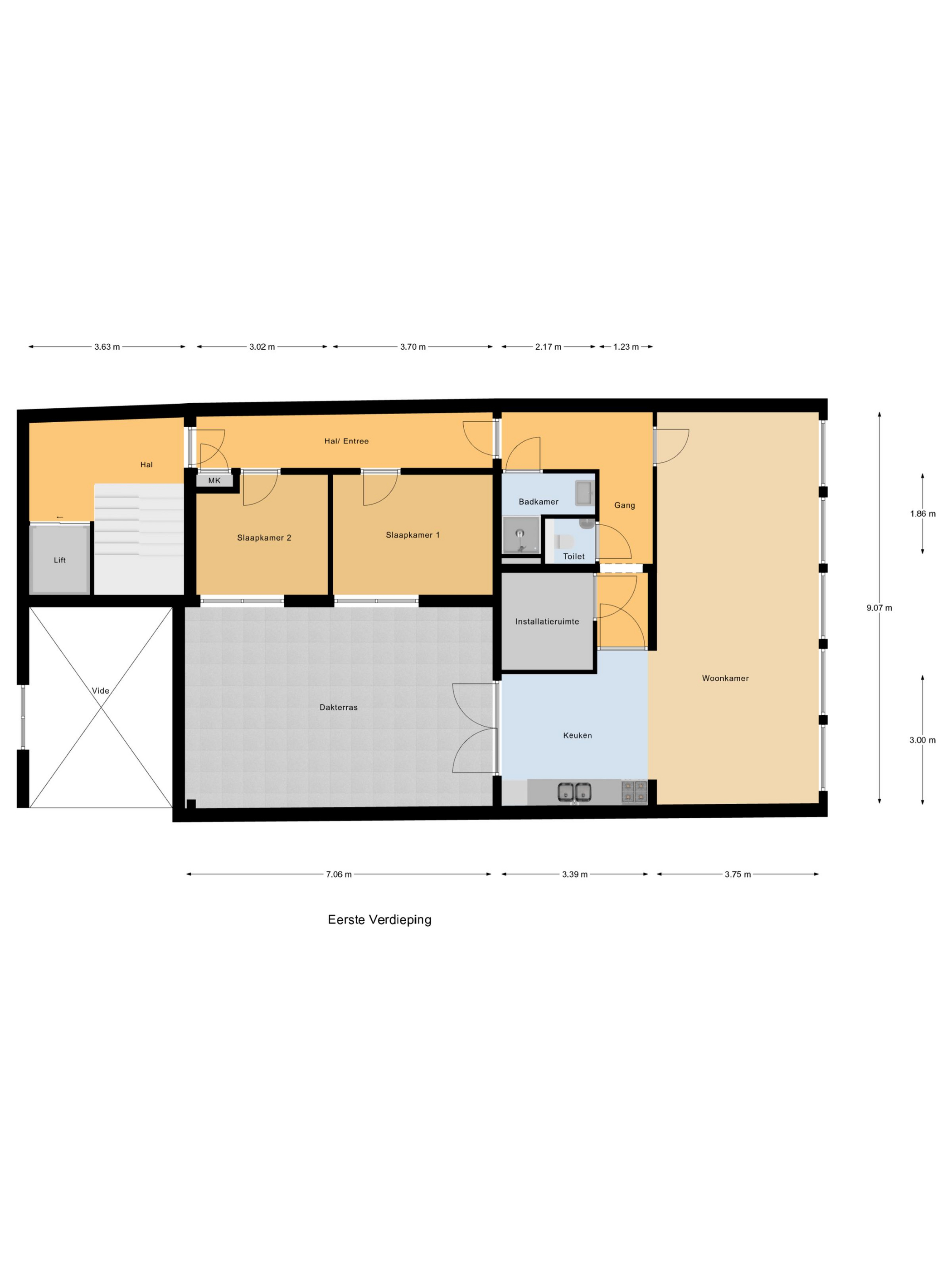
Aan de Waterstraat in hartje Tiel verrijst binnenkort een kleinschalig, maar bijzonder woonproject met karakter. In een voormalig winkelpand worden vier compleet nieuwe appartementen gerealiseerd, elk met een woonoppervlakte van circa 72 m². Elk appartement beschikt bovendien over een eigen berging in de kelder en een gezamenlijke fietsenstalling. Deze appartementen zijn bij uitstek geschikt voor starters die op zoek zijn naar comfort, energiezuinig wonen (energielabel nog niet vastgesteld, vermoedelijk A of beter) en de gezelligheid van de binnenstad om de hoek. De locatie is uitstekend te noemen. De entree is gelegen in de...
Lees meer

Kenmerken

Soort object Portiekflat
Bouwjaar 1953
Aantal kamers 3
Woonoppervlakte 72 m2
Bekijk alle kenmerken

Omschrijving

BINNENKORT IN DE VERKOOP!

Aan de Waterstraat in hartje Tiel verrijst binnenkort een kleinschalig, maar bijzonder woonproject met karakter. In een voormalig winkelpand worden vier compleet nieuwe appartementen gerealiseerd, elk met een woonoppervlakte van circa 72 m². Elk appartement beschikt bovendien over een eigen berging in de kelder en een gezamenlijke fietsenstalling. Deze appartementen zijn bij uitstek geschikt voor starters die op zoek zijn naar comfort, energiezuinig wonen (energielabel nog niet vastgesteld, vermoedelijk A of beter) en de gezelligheid van de binnenstad om de hoek. De locatie is uitstekend te noemen. De entree is gelegen in de levendige Waterstraat, terwijl er een oase van rust is aan de zijde van de buitenruimte aan de Oliemolenwal.

Het gebouw krijgt een tweede leven: met respect voor het bestaande pand, maar volledig vernieuwd en aangepast aan de eisen van nu. Dankzij goede isolatie, een duurzame afwerking en moderne bouwstandaarden kun je hier straks wonen met lage energielasten en volop comfort, het hele jaar door. De nieuwbouwappartementen worden casco opgeleverd: dus wél met betegeld sanitair, maar zonder keuken, je kunt het dus helemaal naar eigen smaak en stijl afwerken. Het gebouw beschikt ook over een lift!

Vervolgfase
Daarnaast worden er op termijn ook nog twee bestaande appartementen verkocht van circa 97 m² met een grote buitenruimte, ideaal voor wie wat meer ruimte zoekt, bijvoorbeeld senioren die graag gelijkvloers willen wonen, maar de levendigheid van het centrum niet willen missen. Hier volgt later meer informatie over. Meld je bij ons aan!

Planning
De voorbereidingen zijn in volle gang. We zullen in kwartaal 3 van 2025 definitief in de verkoop gaan.

Wonen in Tiel
Wonen in Tiel betekent wonen in een stad met een rijk verleden én volop leven in het nu. De historische binnenstad ademt sfeer, met gezellige pleinen, monumentale panden en natuurlijk Flipje – het iconische fruitbaasje van de stad. Alles wat je nodig hebt ligt binnen handbereik: supermarkten, winkels, horeca, scholen en het station zijn allemaal op loop- of fietsafstand. En dankzij de ligging aan de Waal geniet je ook nog eens van fraaie wandelroutes, watertjes en weidse uitzichten. Of je nu houdt van cultuur, natuur of een levendig centrum. Tiel heeft het allemaal, zonder de drukte van de grote stad!

Interesse?
Laat je gegevens achter doormiddel van het versturen van een mail naar nieuwbouw@vanekerenkuiper.nl en blijf op de hoogte van de start verkoop. Dit is je kans om nieuw te wonen op een unieke plek midden in Tiel!

Overdracht

Prijs op aanvraag
Status
beschikbaar
Aanvaarding
in overleg

VvE checklist

Inschrijving KVK
Ja
Jaarlijkse vergadering
Ja
Periodieke bijdrage
Ja
Reservefonds aanwezig
Nee
Onderhoudsplan
Nee
Opstalverzekering
Ja

Oppervlakten en inhoud

Woonoppervlakte
72 m²
Perceeloppervlakte
274 m²
Inhoud
240 m³
Bergruimte oppervlakte
5 m²
Buitenruimte oppervlakte
10 m²

Indeling

Aantal kamers
3
Aantal slaapkamers
2

Buitenruimte

Ligging
in centrum, in woonwijk

Bouw

Soort woning
appartement
Soort appartement
portiekflat
Aantal woonlagen
1
Woonlaag
2
Bouwvorm
bestaande bouw
Bouwjaar
1953
Open portiek
nee
Huidige bestemming
woonruimte
Onderhoud binnen
uitstekend
Onderhoud buiten
uitstekend
Voorzieningen
mechanische ventilatie, lift, glasvezel kabel
Isolatie
volledig geisoleerd

Energie

Energielabel
A
Verwarming
vloerverwarming geheel, warmtepomp, warmte terugwininstallatie
Warm water
elektrische boiler eigendom

Document(en)



Plattegrond(en)

Enthousiast geworden? Dan is het tijd om door te pakken!

Maak een afspraak en plan een bezichtiging.

0345-229300 info@vanekerenkuiper.nl
Doorpakken!
Venster sluiten
Waterstraat 54, afbeelding 0
Waterstraat 54, afbeelding 1
Waterstraat 54, afbeelding 2
Waterstraat 54, afbeelding 3
Waterstraat 54, afbeelding 4
Waterstraat 54, afbeelding 5
Waterstraat 54, afbeelding 6
Waterstraat 54, afbeelding 7
Waterstraat 54, afbeelding 8
Waterstraat 54, afbeelding 9
Waterstraat 54, afbeelding 10
Waterstraat 54, afbeelding 11
Contact