1062

klanten beoordelen ons met een

9,3

!
Mail ons
0
Meer informatie?
Venster sluiten ×
Meer informatie?
Mijn favorieten
Je hebt geen favorieten.
Venster sluiten ×

Zoeken

Jeroen Posthumus
Meer informatie?
0
1
2
3
4
5
6
7
8
9
10
11
12
13
14
15
16
17
18
19
20
21
22
23
24
25
26
27
28
29
30
31
32
33
34
35
36
37
38
39
40
41
42
43
44
45
3352 AP PAPENDRECHT

Walmolen 52

verkocht
Verkocht
Lines Lines
Jeroen
Ook je woning succesvol verkopen?

Vraag een gratis waardebepaling aan.

078-6159960 info@vanekerenkuiper.nl
Bewaren

Bijzonder ruime woning met o.a. een woonoppervlak van 138 m² en een kleurrijke tuin!

Lees meer
  • Overzicht
  • Omschrijving
  • Kenmerken
  • Media
  • Plattegronden
  • Brochure

Omschrijving

Bijzonder ruime woning met o.a. een woonoppervlak van 138 m² en een kleurrijke tuin!

- Walmolen 52 biedt maar liefst 5 (slaap)kamers en een extra bergzolder (3e verdieping).
- De woning is gelegen in de kindvriendelijke wijk Molenvliet, dichtbij winkelcentrum Westpolder en uitvalswegen als de A15, N3 en A16.
- De woning is voorzien van kunststof kozijnen, 10 zonnepanelen en heeft energielabel B!

Globale indeling:

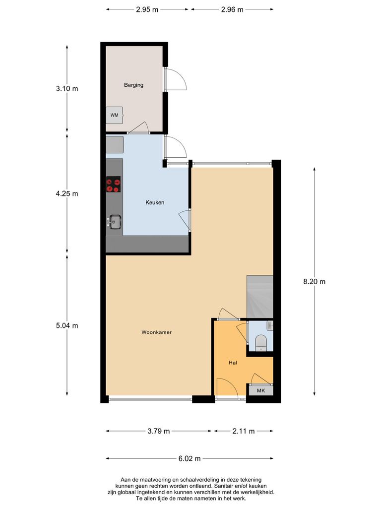
Begane grond: je komt de woning binnen in de hal met toiletruimte, meterkast en garderobe. Vanuit de hal is de woonkamer bereikbaar.
Lees meer

Kenmerken

Soort object Eengezinswoning
Bouwjaar 1974
Aantal kamers 6
Woonoppervlakte 138 m2
Bekijk alle kenmerken

Omschrijving

Bijzonder ruime woning met o.a. een woonoppervlak van 138 m² en een kleurrijke tuin!

- Walmolen 52 biedt maar liefst 5 (slaap)kamers en een extra bergzolder (3e verdieping).
- De woning is gelegen in de kindvriendelijke wijk Molenvliet, dichtbij winkelcentrum Westpolder en uitvalswegen als de A15, N3 en A16.
- De woning is voorzien van kunststof kozijnen, 10 zonnepanelen en heeft energielabel B!

Globale indeling:

Begane grond: je komt de woning binnen in de hal met toiletruimte, meterkast en garderobe. Vanuit de hal is de woonkamer bereikbaar.

De ruime, Z-vormige woonkamer is 33 m² groot en verdeeld in een sfeervol zitgedeelte aan de voorzijde van de woning en een ruimte naast de keuken voor een lange eettafelopstelling.

De aangrenzende keuken is gesitueerd aan de achterzijde van de woning. Deze ruime dichte keuken is voorzien van een keuken in hoekopstelling (2022), bestaande uit onder- en bovenkasten en diverse inbouwapparatuur (Siemens). Vanuit de keuken is de praktische inpandige berging/bijkeuken bereikbaar, waar plek is voor de wasmachine en droger. Zowel vanuit de keuken als berging/bijkeuken is de tuin bereikbaar.

De verzorgde, sfeervolle achtertuin is gesitueerd op het westen. Geniet in de tuin eveneens van een sfeervolle overkapping!

Eerste verdieping: de overloop op de eerste verdieping biedt toegang tot drie slaapkamers en de badkamer. Een deur voor de trapopgang zorgt ervoor dat de warmte van de begane grond niet verloren gaat naar de verdiepingen. De nette badkamer is uitgevoerd met een tweede toilet, een douche en dubbel wastafelmeubel.

Tweede verdieping: de verrassend ruime tweede verdieping biedt toegang tot 2 kamers én een trap naar de bergzolder (3e verdieping). Vanaf de overloop bereik je de ruimste kamer van 533 x 340 cm; vanuit deze kamer is een aparte bergruimte bereikbaar.

De bergzolder, te bereiken middels vaste trap, meet ca. 500 x 340 cm. met een voorzolder van ca. 237 x 180 cm.

Algemeen:
- De woning is voorzien van kunststof kozijnen met HR++ beglazing, 10 zonnepanelen en heeft energielabel B!
- De inpandige berging/bijkeuken is voorzien van een groendak (sedum).
- De woning is voorzien van horren. De balkondeur achter is uitgevoerd met een rolluik.
- Aan de voor- en achtergevel zijn zonneschermen aanwezig.
- De achtertuin is voorzien van een wateraansluiting en achterom.
- Aanvaarding: in overleg.

Overdracht

Status
verkocht
Aanvaarding
in overleg

Oppervlakten en inhoud

Woonoppervlakte
138 m²
Perceeloppervlakte
147 m²
Inhoud
475 m³
Inpandige ruimte oppervlakte
17 m²

Indeling

Aantal kamers
6
Aantal slaapkamers
5

Buitenruimte

Ligging
in woonwijk
Tuin
achtertuin met een oppervlakte van 62 m² en is gelegen op het westen

Bouw

Soort woning
woonhuis
Soort woonhuis
eengezinswoning
Type woonhuis
tussenwoning
Aantal woonlagen
4
Bouwvorm
bestaande bouw
Bouwjaar
1974
Huidige bestemming
woonruimte
Onderhoud binnen
goed
Onderhoud buiten
goed
Voorzieningen
mechanische ventilatie, rolluiken, buitenzonwering, frans balkon, dakraam, zonnepanelen, natuurlijke ventilatie
Isolatie
muurisolatie, vloerisolatie, dubbel glas, hr glas

Energie

Energielabel
B
Verwarming
cv ketel
Warm water
cv ketel
C.V.-ketel
combi-ketel, eigendom

Document(en)



Plattegrond(en)

Plattegrond 1 Plattegrond 2 Plattegrond 3 Plattegrond 4

Enthousiast geworden? Dan is het tijd om door te pakken!

Maak een afspraak en plan een bezichtiging.

078-6159960 info@vanekerenkuiper.nl
Doorpakken!
Venster sluiten
Walmolen 52, afbeelding 0
Walmolen 52, afbeelding 1
Walmolen 52, afbeelding 2
Walmolen 52, afbeelding 3
Walmolen 52, afbeelding 4
Walmolen 52, afbeelding 5
Walmolen 52, afbeelding 6
Walmolen 52, afbeelding 7
Walmolen 52, afbeelding 8
Walmolen 52, afbeelding 9
Walmolen 52, afbeelding 10
Walmolen 52, afbeelding 11
Walmolen 52, afbeelding 12
Walmolen 52, afbeelding 13
Walmolen 52, afbeelding 14
Walmolen 52, afbeelding 15
Walmolen 52, afbeelding 16
Walmolen 52, afbeelding 17
Walmolen 52, afbeelding 18
Walmolen 52, afbeelding 19
Walmolen 52, afbeelding 20
Walmolen 52, afbeelding 21
Walmolen 52, afbeelding 22
Walmolen 52, afbeelding 23
Walmolen 52, afbeelding 24
Walmolen 52, afbeelding 25
Walmolen 52, afbeelding 26
Walmolen 52, afbeelding 27
Walmolen 52, afbeelding 28
Walmolen 52, afbeelding 29
Walmolen 52, afbeelding 30
Walmolen 52, afbeelding 31
Walmolen 52, afbeelding 32
Walmolen 52, afbeelding 33
Walmolen 52, afbeelding 34
Walmolen 52, afbeelding 35
Walmolen 52, afbeelding 36
Walmolen 52, afbeelding 37
Walmolen 52, afbeelding 38
Walmolen 52, afbeelding 39
Walmolen 52, afbeelding 40
Walmolen 52, afbeelding 41
Walmolen 52, afbeelding 42
Walmolen 52, afbeelding 43
Walmolen 52, afbeelding 44
Walmolen 52, afbeelding 45
Contact