1062

klanten beoordelen ons met een

9,3

!
Mail ons
0
Meer informatie?
Venster sluiten ×
Meer informatie?
Mijn favorieten
Je hebt geen favorieten.
Venster sluiten ×

Zoeken

Madelon Sommer
Meer informatie?
0
1
2
3
4
5
6
7
8
9
10
11
12
13
14
15
16
17
18
19
20
21
22
23
24
25
26
27
28
29
30
31
32
33
34
35
36
4201 ZG GORINCHEM

Vissersdijk 70

verkocht
Verkocht
Lines Lines
Madelon Sommer
Ook je woning succesvol verkopen?

Vraag een gratis waardebepaling aan.

0183-672992 info@vanekerenkuiper.nl
Bewaren

Charmant herenhuis met historie en karakter in hartje Gorinchem

Lees meer
  • Overzicht
  • Omschrijving
  • Kenmerken
  • Media
  • Plattegronden
  • Brochure

Omschrijving

Charmant herenhuis met historie en karakter in hartje Gorinchem

- Mogelijkheid tot B&B, praktijkruimte of appartement met eigen opgang
- Hoge plafonds, sierlijsten én dat sfeervolle gevoel van toen
- Woonoppervlak van maar liefst 149 m², verdeeld over 2 woonlagen
- Royaal dakterras én stadstuin

Dit charmante pand in de binnenstad van Gorinchem ademt karakter, met hoge plafonds, klassieke sierlijsten en een indeling die je volop ruimte én mogelijkheden biedt. Op de eerste verdieping bevinden zich de woonkamer, de keuken en het riante dakterras. Dankzij de grote raampartijen en openslaande deuren...
Lees meer

Kenmerken

Soort object Benedenwoning
Bouwjaar 1890
Aantal kamers 4
Woonoppervlakte 149 m2
Bekijk alle kenmerken

Omschrijving

Charmant herenhuis met historie en karakter in hartje Gorinchem

- Mogelijkheid tot B&B, praktijkruimte of appartement met eigen opgang
- Hoge plafonds, sierlijsten én dat sfeervolle gevoel van toen
- Woonoppervlak van maar liefst 149 m², verdeeld over 2 woonlagen
- Royaal dakterras én stadstuin

Dit charmante pand in de binnenstad van Gorinchem ademt karakter, met hoge plafonds, klassieke sierlijsten en een indeling die je volop ruimte én mogelijkheden biedt. Op de eerste verdieping bevinden zich de woonkamer, de keuken en het riante dakterras. Dankzij de grote raampartijen en openslaande deuren naar het dakterras stroomt het daglicht rijkelijk naar binnen – dat geeft meteen een fijn, open gevoel.

Een verdieping lager, in het souterrain, tref je een ruime slaapkamer met badkamer. Daarnaast bevindt zich in het souterrain een volledig zelfstandig appartement met een eigen opgang. Deze ruimte leent zich uitstekend voor diverse doeleinden, zoals het starten van een Bed & Breakfast, het inrichten van een praktijkruimte of het gebruik als apart woonverblijf. Dankzij de eigen entree is privacy gegarandeerd, wat het ideaal maakt voor zowel zakelijke als particuliere invulling.

Kortom: een verrassend ruime woning met volop gebruiksmogelijkheden, midden in het centrum van Gorinchem

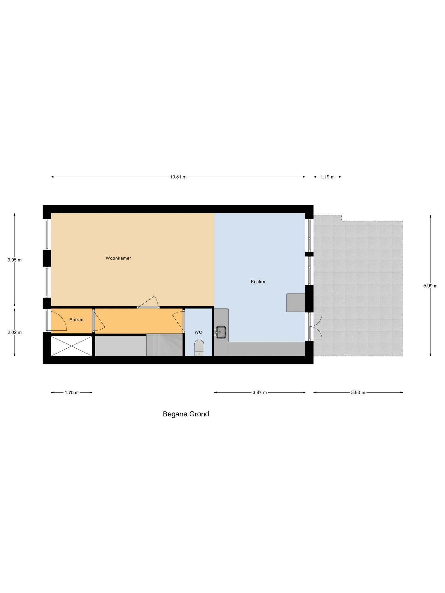
Globale indeling:
Begane grond: entree met toilet en toegang tot de woonkamer. De royale woonkamer beschikt over een open keuken en openslaande deuren naar het dakterras van ca. 6 x 3,8 meter. De keuken is uitgerust met diverse inbouwapparatuur.

Souterrain: bereikbaar via een wenteltrap. Vanuit de hal zijn de slaapkamer en badkamer voorzien van een inloopdouche, ligbad, toilet en wastafel toegankelijk. De master bedroom beschikt over een vaste kast en twee ramen aan de straatzijde. Via een tussendeur is het tweede woongedeelte bereikbaar, met een eigen slaapkamer, keuken, badkamer, woonkamer en wasruimte.

Goed om te weten:
- De woning is voorzien van een definitief energielabel C
- De tweede woning heeft een eigen meterkast en CV-ketel. 
- Zowel een dakterras als achtertuin
- Unieke ligging in de historische binnenstad

Ligging: Gorinchem, een stad met ruim 38.000 inwoners, combineert haar rijke historie met een modern en levendig karakter. De stad staat bekend om de goed bewaarde vestingwallen en bastions uit de 16e eeuw, het charmante oude stadhuis en de sfeervolle Grote Markt. De smalle straatjes en steegjes geven Gorinchem een unieke uitstraling. Tegelijkertijd is het een moderne stad met een uitgebreid aanbod aan winkels, scholen, sportfaciliteiten en culturele bezienswaardigheden.
De binnenstad biedt een prachtige mix van levendigheid en rust, met hoogtepunten zoals de stadswallen, Buiten de Waterpoort, de rivier De Merwede en de haven. Gorinchem is strategisch gelegen aan de A15 en A27, waardoor steden zoals Utrecht, Rotterdam en Breda binnen 30-40 minuten bereikbaar zijn. Gorinchem biedt de perfecte balans tussen historie, modern comfort en centrale bereikbaarheid. Een ideale plek om te wonen!

Overdracht

Status
verkocht
Aanvaarding
in overleg

VvE checklist

Inschrijving KVK
Ja
Jaarlijkse vergadering
Nee
Periodieke bijdrage
Nee
Reservefonds aanwezig
Nee
Onderhoudsplan
Nee
Opstalverzekering
Nee

Oppervlakten en inhoud

Woonoppervlakte
149 m²
Buitenruimte oppervlakte
23 m²

Indeling

Aantal kamers
4
Aantal slaapkamers
2

Buitenruimte

Ligging
aan rustige weg, in centrum
Tuin
achtertuin met een oppervlakte van 21 m² en is gelegen op het oosten

Bouw

Soort woning
appartement
Soort appartement
benedenwoning
Aantal woonlagen
2
Bouwvorm
bestaande bouw
Bouwjaar
1890
Open portiek
nee
Huidige bestemming
woonruimte
Onderhoud binnen
redelijk_tot_goed
Onderhoud buiten
redelijk_tot_goed
Voorzieningen
tv kabel
Isolatie
muurisolatie, gedeeltelijk dubbel glas

Energie

Energielabel
C
Verwarming
cv ketel
Warm water
cv ketel
C.V.-ketel
gas gestookte cv-ketel uit 2019 van Intergas, eigendom

Document(en)



Plattegrond(en)

Plattegrond 1 Plattegrond 2

Enthousiast geworden? Dan is het tijd om door te pakken!

Maak een afspraak en plan een bezichtiging.

0183-672992 info@vanekerenkuiper.nl
Doorpakken!
Venster sluiten
Vissersdijk 70, afbeelding 0
Vissersdijk 70, afbeelding 1
Vissersdijk 70, afbeelding 2
Vissersdijk 70, afbeelding 3
Vissersdijk 70, afbeelding 4
Vissersdijk 70, afbeelding 5
Vissersdijk 70, afbeelding 6
Vissersdijk 70, afbeelding 7
Vissersdijk 70, afbeelding 8
Vissersdijk 70, afbeelding 9
Vissersdijk 70, afbeelding 10
Vissersdijk 70, afbeelding 11
Vissersdijk 70, afbeelding 12
Vissersdijk 70, afbeelding 13
Vissersdijk 70, afbeelding 14
Vissersdijk 70, afbeelding 15
Vissersdijk 70, afbeelding 16
Vissersdijk 70, afbeelding 17
Vissersdijk 70, afbeelding 18
Vissersdijk 70, afbeelding 19
Vissersdijk 70, afbeelding 20
Vissersdijk 70, afbeelding 21
Vissersdijk 70, afbeelding 22
Vissersdijk 70, afbeelding 23
Vissersdijk 70, afbeelding 24
Vissersdijk 70, afbeelding 25
Vissersdijk 70, afbeelding 26
Vissersdijk 70, afbeelding 27
Vissersdijk 70, afbeelding 28
Vissersdijk 70, afbeelding 29
Vissersdijk 70, afbeelding 30
Vissersdijk 70, afbeelding 31
Vissersdijk 70, afbeelding 32
Vissersdijk 70, afbeelding 33
Vissersdijk 70, afbeelding 34
Vissersdijk 70, afbeelding 35
Vissersdijk 70, afbeelding 36
Contact