1062

klanten beoordelen ons met een

9,3

!
Mail ons
0
Meer informatie?
Venster sluiten ×
Meer informatie?
Mijn favorieten
Je hebt geen favorieten.
Venster sluiten ×

Zoeken

Jimmy
Meer informatie?
0
1
2
3
4
5
6
7
8
9
10
11
12
13
14
15
16
17
18
19
20
21
22
23
24
25
26
27
28
29
30
31
32
33
34
35
36
4207 EG GORINCHEM

Talud 15

verkocht
Verkocht
Lines Lines
Jimmy Hammer
Ook je woning succesvol verkopen?

Vraag een gratis waardebepaling aan.

0183-672992 info@vanekerenkuiper.nl
Bewaren

Drive-in woning met een diepe achtertuin in de geliefde wijk Wijdschild!

Lees meer
  • Overzicht
  • Omschrijving
  • Kenmerken
  • Media
  • Plattegronden
  • Brochure

Omschrijving

Drive-in woning met een diepe achtertuin in de geliefde wijk Wijdschild!

- Twee badkamers aanwezig
- Altijd een parkeerplek op eigen terrein
- Onderhoudsvriendelijke achtertuin grenzend aan een slootje

Op zoek naar een verrassende woning met creatieve indeling dan is deze drive-in woning in de wijk Wijdschild wellicht wat voor jou! Beneden vind je een royale tuinkamer met aangrenzende badkamer; ideaal als gastenverblijf, thuiswerkplek of slaapkamer. Op de eerste verdieping is de lichte woonkamer met toegang naar een vergroot balkon aan de achterzijde, welke als verlengde van de woonkamer fungeert. De extra...
Lees meer

Kenmerken

Soort object Eengezinswoning
Bouwjaar 1970
Aantal kamers 4
Woonoppervlakte 125 m2
Bekijk alle kenmerken

Omschrijving

Drive-in woning met een diepe achtertuin in de geliefde wijk Wijdschild!

- Twee badkamers aanwezig
- Altijd een parkeerplek op eigen terrein
- Onderhoudsvriendelijke achtertuin grenzend aan een slootje

Op zoek naar een verrassende woning met creatieve indeling dan is deze drive-in woning in de wijk Wijdschild wellicht wat voor jou! Beneden vind je een royale tuinkamer met aangrenzende badkamer; ideaal als gastenverblijf, thuiswerkplek of slaapkamer. Op de eerste verdieping is de lichte woonkamer met toegang naar een vergroot balkon aan de achterzijde, welke als verlengde van de woonkamer fungeert. De extra ruime keuken heeft een tweede balkon aan de voorzijde. Boven zijn er nog twee slaapkamers (voorheen 3) en een tweede badkamer. De tuin? Onderhoudsvriendelijk én gelegen aan een slootje ideaal voor een ontspannen borrel in het zonnetje. De ligging is bovendien top: binnen vijf minuten fietsen sta je in het gezellige centrum van Gorinchem.

Globale indeling
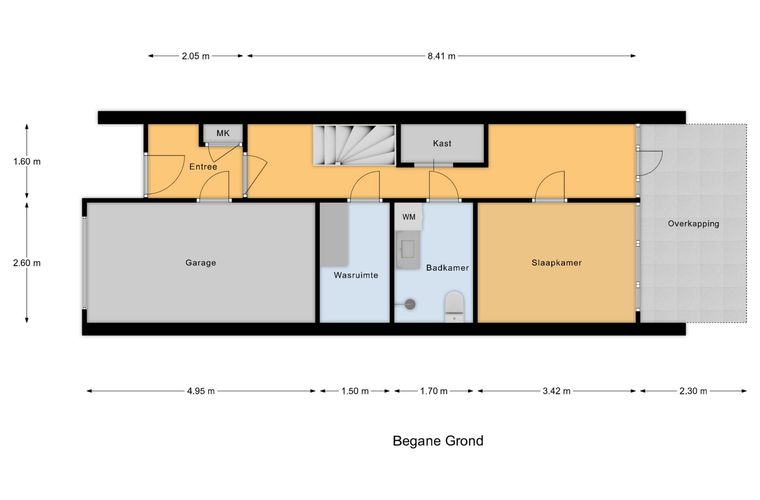
Begane grond: entree; hal met meterkast en toegang tot de garage; garage voorzien van elektra; hal met toegang tot de berging, badkamer en slaapkamer; slaapkamer aan achterzijde; badkamer voorzien van douche, toilet, wastafel en witgoedaansluitingen; vanuit de hal toegang tot de onderhoudsvriendelijke achtertuin;

Eerste verdieping: woonkamer met toegang tot het balkon; ruime open keuken voorzien van een dubbele spoelbak, afzuigkap, vaatwasser, koelkast en vriezer; vanuit de keuken toegang tot een tweede balkon aan de voorzijde;

Tweede verdieping: overloop met vaste kast, berging met cv-installatie en mechanische ventilatie; vanuit de overloop toegang tot de badkamer en twee ruime slaapkamers, waarvan één voorzien van een derde balkon; badkamer voorzien van toilet, wastafel en douche. 

Goed om te weten: 
- Voorzien van een definitief energielabel C
- Parkeergelegenheid op eigen terrein
- Achtertuin op het oosten met overkapping onder het balkon

Ligging: Gorinchem, een stad met ruim 38.000 inwoners, combineert haar rijke historie met een modern en levendig karakter. De stad staat bekend om de goed bewaarde vestingwallen en bastions uit de 16e eeuw, het charmante oude stadhuis en de sfeervolle Grote Markt. De smalle straatjes en steegjes geven Gorinchem een unieke uitstraling. Tegelijkertijd is het een moderne stad met een uitgebreid aanbod aan winkels, scholen, sportfaciliteiten en culturele bezienswaardigheden.
De binnenstad biedt een prachtige mix van levendigheid en rust, met hoogtepunten zoals de stadswallen, Buiten de Waterpoort, de rivier De Merwede en de haven. Gorinchem is strategisch gelegen aan de A15 en A27, waardoor steden zoals Utrecht, Rotterdam en Breda binnen 30-40 minuten bereikbaar zijn. Gorinchem biedt de perfecte balans tussen historie, modern comfort en centrale bereikbaarheid. Een ideale plek om te wonen!

Overdracht

Status
verkocht
Aanvaarding
in overleg

Oppervlakten en inhoud

Woonoppervlakte
125 m²
Perceeloppervlakte
149 m²
Inhoud
465 m³
Inpandige ruimte oppervlakte
13 m²

Indeling

Aantal kamers
4
Aantal slaapkamers
3

Buitenruimte

Ligging
in woonwijk
Tuin
achtertuin met een oppervlakte van 61 m² en is gelegen op het oosten

Bouw

Soort woning
woonhuis
Soort woonhuis
eengezinswoning
Type woonhuis
tussenwoning
Aantal woonlagen
3
Bouwvorm
bestaande bouw
Bouwjaar
1970
Huidige bestemming
woonruimte
Onderhoud binnen
goed
Onderhoud buiten
goed
Voorzieningen
tv kabel, buitenzonwering
Isolatie
dakisolatie, hr glas

Energie

Energielabel
C
Verwarming
cv ketel, vloerverwarming gedeeltelijk
Warm water
cv ketel
C.V.-ketel
gas gestookte cv-ketel uit 2007 van Bosch, eigendom

Document(en)



Plattegrond(en)

Plattegrond 1 Plattegrond 2 Plattegrond 3 Plattegrond 4

Enthousiast geworden? Dan is het tijd om door te pakken!

Maak een afspraak en plan een bezichtiging.

0183-672992 info@vanekerenkuiper.nl
Doorpakken!
Venster sluiten
Talud 15, afbeelding 0
Talud 15, afbeelding 1
Talud 15, afbeelding 2
Talud 15, afbeelding 3
Talud 15, afbeelding 4
Talud 15, afbeelding 5
Talud 15, afbeelding 6
Talud 15, afbeelding 7
Talud 15, afbeelding 8
Talud 15, afbeelding 9
Talud 15, afbeelding 10
Talud 15, afbeelding 11
Talud 15, afbeelding 12
Talud 15, afbeelding 13
Talud 15, afbeelding 14
Talud 15, afbeelding 15
Talud 15, afbeelding 16
Talud 15, afbeelding 17
Talud 15, afbeelding 18
Talud 15, afbeelding 19
Talud 15, afbeelding 20
Talud 15, afbeelding 21
Talud 15, afbeelding 22
Talud 15, afbeelding 23
Talud 15, afbeelding 24
Talud 15, afbeelding 25
Talud 15, afbeelding 26
Talud 15, afbeelding 27
Talud 15, afbeelding 28
Talud 15, afbeelding 29
Talud 15, afbeelding 30
Talud 15, afbeelding 31
Talud 15, afbeelding 32
Talud 15, afbeelding 33
Talud 15, afbeelding 34
Talud 15, afbeelding 35
Talud 15, afbeelding 36
Contact