1062

klanten beoordelen ons met een

9,3

!
Mail ons
0
Meer informatie?
Venster sluiten ×
Meer informatie?
Mijn favorieten
Je hebt geen favorieten.
Venster sluiten ×

Zoeken

Kim Smit
Meer informatie?
0
1
2
3
4
5
6
7
8
9
10
11
12
13
14
15
16
17
18
19
20
21
22
23
24
25
26
27
28
29
30
31
32
33
34
35
36
37
38
39
40
41
42
43
44
45
46
4206 XW GORINCHEM

Suzanna van Oostdijkstraat 2

verkocht
Verkocht
Lines Lines
Kim Smit
Ook je woning succesvol verkopen?

Vraag een gratis waardebepaling aan.

0183-672992 info@vanekerenkuiper.nl
Bewaren

Zo goed als nieuw, energiezuinig en verrassend ruim!

Lees meer
  • Overzicht
  • Omschrijving
  • Kenmerken
  • Media
  • Plattegronden
  • Brochure

Omschrijving

Zo goed als nieuw, energiezuinig en verrassend ruim!

- Heerlijk hoekperceel met eigen parkeerplaats en zonnige tuin
- Energielabel A++++, gasloos, voorzien van luchtwarmtepomp en 16 zonnepanelen
- Uitgebouwd, 5 volwaardige slaapkamers binnen circa 130 m² woonoppervlak 
- Een complete en stijlvolle afwerking!

In het jonge, groene nieuwgedeelte van de Lingewijk staat deze instapklare hoekwoning uit 2022. Hier woon je duurzaam en comfortabel, in een rustige straat met alles binnen handbereik. Scholen, winkels, speeltuintjes en het centrum van Gorinchem is op een paar minuten (fietsen) te bereiken.

...
Lees meer

Kenmerken

Soort object Eengezinswoning
Bouwjaar 2022
Aantal kamers 6
Woonoppervlakte 130 m2
Bekijk alle kenmerken

Omschrijving

Zo goed als nieuw, energiezuinig en verrassend ruim!

- Heerlijk hoekperceel met eigen parkeerplaats en zonnige tuin
- Energielabel A++++, gasloos, voorzien van luchtwarmtepomp en 16 zonnepanelen
- Uitgebouwd, 5 volwaardige slaapkamers binnen circa 130 m² woonoppervlak 
- Een complete en stijlvolle afwerking!

In het jonge, groene nieuwgedeelte van de Lingewijk staat deze instapklare hoekwoning uit 2022. Hier woon je duurzaam en comfortabel, in een rustige straat met alles binnen handbereik. Scholen, winkels, speeltuintjes en het centrum van Gorinchem is op een paar minuten (fietsen) te bereiken.

De woning is tot in de puntjes afgewerkt en dat voel je zodra je binnenstapt. Ideaal voor wie op zoek is naar ruimte en veel lichtinval. De keuken aan de voorzijde is strak en compleet met luxe inbouwapparatuur. De woonkamer is speels dankzij de erker aan de zijkant en de uitbouw aan de achterzijde incl. openslaande deuren naar de tuin. Boven tref je maar liefst vijf slaapkamers en een moderne badkamer die alles biedt wat je nodig hebt.

De tuin is onderhoudsvriendelijk ingericht met o.a. een gezellig terras. Parkeren? Dat doe je 'in de achtertuin' op eigen erf of in de straat voor of opzij. Rij je elektrisch? Geen probleem. Er is namelijk zelfs een laadpaal aanwezig. Kortom: een fijne, duurzame en stijlvolle woning met voldoende ruimte die je zó kunt betrekken.

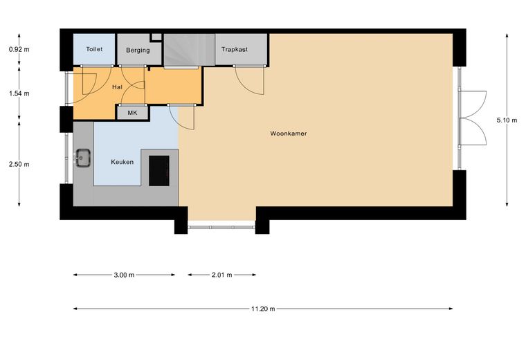
De globale indeling: 

Begane grond: entree; hal, toilet met fonteintje, meterkast en trapopgang naar de eerste verdieping; woonkamer met trapkast; open keuken met schier/kookeiland en volledige apparatuur (inductiekookplaat, spoelbak met Quooker, XXL-vaatwasser, combi oven/magnetron, vriezer en koelkast). 

Eerste verdieping: overloop met toegang tot drie slaapkamers en de badkamer met douche, ligbad, wastafelmeubel en toilet. 

Tweede verdieping: overloop met toegang tot twee slaapkamers, beide met een dakraam en bergruimte achter de knieschotten; separate technische ruimte met witgoedaansluitingen, WTW-installatie, omvormer voor de zonnepanelen en opstelling warmtepomp.

Goed om te weten:
- Volledig geïsoleerd en energielabel A++++
- Vloerverwarming- en koeling op de begane grond en eerste verdieping
- Iedere ruimte is met zorg en aandacht ingericht en afgewerkt
- Ligging in rustige straat met speeltuin om de hoek
 
Ligging:
Deze woning ligt in de gezellige Lingewijk, een fijne en kindvriendelijke buurt met alle voorzieningen binnen handbereik. Even een boodschap doen? De supermarkt is vlakbij. Liever een frisse neus halen? De omgeving biedt genoeg mogelijkheden voor een mooie wandeling of fietstocht. Bovendien bevindt zich om de hoek een grote speeltuin voor de kleintjes. Dankzij de goede verbindingen ben je bovendien zo in het centrum of op de snelweg.

Gorinchem, een stad met ruim 38.000 inwoners, combineert haar rijke historie met een modern en levendig karakter. De stad staat bekend om de goed bewaarde vestingwallen en bastions uit de 16e eeuw, het charmante oude stadhuis en de sfeervolle Grote Markt. De smalle straatjes en steegjes geven Gorinchem een unieke uitstraling. Tegelijkertijd is het een moderne stad met een uitgebreid aanbod aan winkels, scholen, sportfaciliteiten en culturele bezienswaardigheden.
De binnenstad biedt een prachtige mix van levendigheid en rust, met hoogtepunten zoals de stadswallen, Buiten de Waterpoort, de rivier De Merwede en de haven. Gorinchem is strategisch gelegen aan de A15 en A27, waardoor steden zoals Utrecht, Rotterdam en Breda binnen 30-40 minuten bereikbaar zijn. Gorinchem biedt de perfecte balans tussen historie, modern comfort en centrale bereikbaarheid. Een ideale plek om te wonen!

Overdracht

Status
verkocht
Aanvaarding
in overleg

Oppervlakten en inhoud

Woonoppervlakte
130 m²
Perceeloppervlakte
202 m²
Inhoud
455 m³
Bergruimte oppervlakte
7 m²

Indeling

Aantal kamers
6
Aantal slaapkamers
5

Buitenruimte

Ligging
aan rustige weg, in woonwijk
Tuin
achtertuin met een oppervlakte van 104 m² en is gelegen op het noordoosten

Bouw

Soort woning
woonhuis
Soort woonhuis
eengezinswoning
Type woonhuis
hoekwoning
Aantal woonlagen
3
Bouwvorm
bestaande bouw
Bouwjaar
2022
Huidige bestemming
woonruimte
Onderhoud binnen
goed
Onderhoud buiten
goed
Voorzieningen
mechanische ventilatie, dakraam, glasvezel kabel, zonnepanelen
Isolatie
volledig geisoleerd

Energie

Energielabel
A++++
Verwarming
vloerverwarming geheel

Document(en)



Plattegrond(en)

Plattegrond 1 Plattegrond 2 Plattegrond 3

Enthousiast geworden? Dan is het tijd om door te pakken!

Maak een afspraak en plan een bezichtiging.

0183-672992 info@vanekerenkuiper.nl
Doorpakken!
Venster sluiten
Suzanna van Oostdijkstraat 2, afbeelding 0
Suzanna van Oostdijkstraat 2, afbeelding 1
Suzanna van Oostdijkstraat 2, afbeelding 2
Suzanna van Oostdijkstraat 2, afbeelding 3
Suzanna van Oostdijkstraat 2, afbeelding 4
Suzanna van Oostdijkstraat 2, afbeelding 5
Suzanna van Oostdijkstraat 2, afbeelding 6
Suzanna van Oostdijkstraat 2, afbeelding 7
Suzanna van Oostdijkstraat 2, afbeelding 8
Suzanna van Oostdijkstraat 2, afbeelding 9
Suzanna van Oostdijkstraat 2, afbeelding 10
Suzanna van Oostdijkstraat 2, afbeelding 11
Suzanna van Oostdijkstraat 2, afbeelding 12
Suzanna van Oostdijkstraat 2, afbeelding 13
Suzanna van Oostdijkstraat 2, afbeelding 14
Suzanna van Oostdijkstraat 2, afbeelding 15
Suzanna van Oostdijkstraat 2, afbeelding 16
Suzanna van Oostdijkstraat 2, afbeelding 17
Suzanna van Oostdijkstraat 2, afbeelding 18
Suzanna van Oostdijkstraat 2, afbeelding 19
Suzanna van Oostdijkstraat 2, afbeelding 20
Suzanna van Oostdijkstraat 2, afbeelding 21
Suzanna van Oostdijkstraat 2, afbeelding 22
Suzanna van Oostdijkstraat 2, afbeelding 23
Suzanna van Oostdijkstraat 2, afbeelding 24
Suzanna van Oostdijkstraat 2, afbeelding 25
Suzanna van Oostdijkstraat 2, afbeelding 26
Suzanna van Oostdijkstraat 2, afbeelding 27
Suzanna van Oostdijkstraat 2, afbeelding 28
Suzanna van Oostdijkstraat 2, afbeelding 29
Suzanna van Oostdijkstraat 2, afbeelding 30
Suzanna van Oostdijkstraat 2, afbeelding 31
Suzanna van Oostdijkstraat 2, afbeelding 32
Suzanna van Oostdijkstraat 2, afbeelding 33
Suzanna van Oostdijkstraat 2, afbeelding 34
Suzanna van Oostdijkstraat 2, afbeelding 35
Suzanna van Oostdijkstraat 2, afbeelding 36
Suzanna van Oostdijkstraat 2, afbeelding 37
Suzanna van Oostdijkstraat 2, afbeelding 38
Suzanna van Oostdijkstraat 2, afbeelding 39
Suzanna van Oostdijkstraat 2, afbeelding 40
Suzanna van Oostdijkstraat 2, afbeelding 41
Suzanna van Oostdijkstraat 2, afbeelding 42
Suzanna van Oostdijkstraat 2, afbeelding 43
Suzanna van Oostdijkstraat 2, afbeelding 44
Suzanna van Oostdijkstraat 2, afbeelding 45
Suzanna van Oostdijkstraat 2, afbeelding 46
Contact