1062

klanten beoordelen ons met een

9,3

!
Mail ons
0
Meer informatie?
Venster sluiten ×
Meer informatie?
Mijn favorieten
Je hebt geen favorieten.
Venster sluiten ×

Zoeken

Gerald de Jong
Meer informatie?
0
1
2
3
4
5
6
7
8
9
10
11
12
13
14
15
16
17
18
19
20
21
22
23
24
25
26
27
28
29
30
31
32
33
34
35
4142 SP LEERDAM

Spiegellaan 12

verkocht
Verkocht
Lines Lines
Gerald de Jong
Ook je woning succesvol verkopen?

Vraag een gratis waardebepaling aan.

0345-632100 info@vanekerenkuiper.nl
Bewaren

Modern en energiezuinige twee-onder-één-kap woning met uitgebouwde woonkamer in nieuwbouwwijk Broekgraaf!

Lees meer
  • Overzicht
  • Omschrijving
  • Kenmerken
  • Media
  • Plattegronden
  • Brochure

Omschrijving

Modern en energiezuinige twee-onder-één-kap woning met uitgebouwde woonkamer in nieuwbouwwijk Broekgraaf!

- Instapklaar en energiezuinig – zonnepanelen, uitstekende isolatie en bouwjaar 2017
- Luxe en ruim: vier slaapkamers, moderne keuken, uitgebouwde woonkamer en parkeren op eigen terrein
- Kindvriendelijke buurt: speeltuinen, scholen en het winkelcentrum 'Europaplein' op loopafstand

Deze prachtige twee-onder-één-kap woning ligt in het gezellige straatje met de bruggetjes, de Spiegellaan, in de nieuwbouwwijk Broekgraaf. De woning, gebouwd in 2017, is voorzien van hoogwaardige materialen en heeft de uitstraling van een jaren '30 woning. De ruime woonkamer met openslaande deuren naar...
Lees meer

Kenmerken

Soort object Eengezinswoning
Bouwjaar 2017
Aantal kamers 5
Woonoppervlakte 161 m2
Bekijk alle kenmerken

Omschrijving

Modern en energiezuinige twee-onder-één-kap woning met uitgebouwde woonkamer in nieuwbouwwijk Broekgraaf!

- Instapklaar en energiezuinig – zonnepanelen, uitstekende isolatie en bouwjaar 2017
- Luxe en ruim: vier slaapkamers, moderne keuken, uitgebouwde woonkamer en parkeren op eigen terrein
- Kindvriendelijke buurt: speeltuinen, scholen en het winkelcentrum 'Europaplein' op loopafstand

Deze prachtige twee-onder-één-kap woning ligt in het gezellige straatje met de bruggetjes, de Spiegellaan, in de nieuwbouwwijk Broekgraaf. De woning, gebouwd in 2017, is voorzien van hoogwaardige materialen en heeft de uitstraling van een jaren '30 woning. De ruime woonkamer met openslaande deuren naar de zonnige achtertuin, moderne open keuken ook weer met openslaande deuren naar de voorzijde waar het water zich bevindt en ruime zolder verdieping zorgen bij elkaar voor ultiem wooncomfort. En met vier slaapkamers en een energiezuinig ontwerp is dit huis helemaal klaar voor de toekomst!

En dan hebben we het nog niet eens over de ligging gehad, de woning is gelegen in de jonge, kindvriendelijke wijk Broekgraaf. De omgeving biedt veel groen en speelgelegenheden voor kinderen, scholen, sportverenigingen en het winkelcentrum 'Europaplein' bevindt zich op loop- en fietsafstand. De wijk is bovendien uitstekend bereikbaar en ligt gunstig ten opzichte van uitvalswegen.

Kortom: Een heerlijk ruime woning op een kindvriendelijke locatie!

Globale indeling:

Begane grond: entree, hal, berging, toilet met fontein, meterkast en toegang naar eerste verdieping; de lichte woonkamer met openslaande deuren naar achtertuin is voorzien van een trappenkast en open keuken; de open keuken beschikt over een 4-pits bora kookplaat, vaatwasser, spoelbak, koelkast, vriezer, twee combi-ovens en openslaande deuren naar de voorzijde van de woning. 

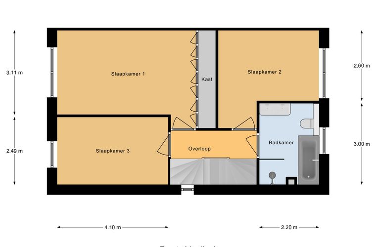
Eerste verdieping: overloop met toegang tot de 3 slaapkamers, badkamer en vaste trap naar de tweede verdieping; de 3 slaapkamers zijn allen voorzien van horren; de badkamer is uitgerust met een inloopdouche, ligbad, dubbele spoelbak en een tweede toilet.

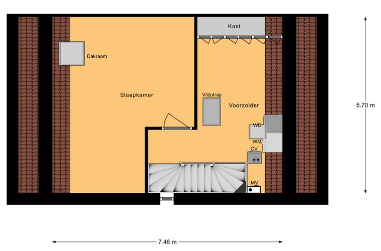
Tweede verdieping: overloop voorzien wasmachine- en drogeraansluitingen, cv-ketel, mechanische ventilatie, de omvormer voor de zonnepanelen, een dakraam en vlizotrap naar de bergzolder; tevens tref je hier een vierde slaapkamer voorzien van een dakraam en airco die zowel kan koelen als verwarmen.

Tuin:
- Achtertuin op het noordoosten voorzien van achterom en vorstvrije buitenkraan.
- De tuin is voorzien van diverse terrassen en bloemenborders.
- Toegang tot de garage die beschikt over dubbele openslaande deuren en elektra.
- De voortuin is te bereiken de openslaande deuren vanuit de keuken of buitenom via de oprit.
- Parkeren op eigen terrein, bereikbaar middels een gezellig bruggetje.
- Aan de voorzijde voorzien van een houten steiger om aan het water te zitten.

Goed om te weten:
- De woning is voorzien van 14 zonnepanelen voor lagere energiekosten
- Eigen oprit met ruimte voor meerdere auto's
- Alle slaapkamers zijn voorzien van horren
- Garage met elektra en openslaande dubbele deuren
- De woning beschikt over een vorstvrije buitenkraan aan de opritzijde
- Instapklare woning, onderhoudsarm

Ligging: Leerdam, met circa 21.000 inwoners, ligt in de provincie Utrecht en is onderdeel van de gemeente Vijfheerenlanden. Een afwisselend landschap van weilanden, boomgaarden, grienden en rietvelden. Leerdam is zeer centraal gelegen in het land, in directe omgeving treft u de A27, A2 en A15. Grote steden als Breda, Utrecht en Rotterdam zijn bereikbaar binnen 30 autominuten. Deze steden zijn ook gemakkelijk te bereiken per bus en trein welke zich op loopafstand van de woning bevinden. 

De stad heeft een rijke geschiedenis, welke terug te vinden is in goedbewaarde historische gebouwen, zoals de Grote Kerk, het Hofje van mevrouw van Aerden, de stadswallen aan de Zuidwal en het Oude Raadhuis. Met de vestiging van de eerste glasblazerij in 1765 werd een onuitwisbaar stempel op Leerdam gedrukt. Tot op heden staat Leerdam internationaal als Glasstad bekend.

Leerdam biedt een compleet pakket qua sport, zorg en onderwijs (basis- en voortgezet onderwijs). Het sfeervolle stadscentrum beschikt over uitstekende winkelvoorzieningen.

Overdracht

Status
verkocht
Aanvaarding
in overleg

Oppervlakten en inhoud

Woonoppervlakte
161 m²
Perceeloppervlakte
284 m²
Inhoud
564 m³
Bergruimte oppervlakte
18 m²

Indeling

Aantal kamers
5
Aantal slaapkamers
4

Buitenruimte

Ligging
in woonwijk
Tuin
achtertuin met een oppervlakte van 98 m² en is gelegen op het noordoosten

Bouw

Soort woning
woonhuis
Soort woonhuis
eengezinswoning
Type woonhuis
geschakelde twee onder een kapwoning
Aantal woonlagen
4
Bouwvorm
bestaande bouw
Bouwjaar
2017
Huidige bestemming
woonruimte
Onderhoud binnen
goed
Onderhoud buiten
goed
Voorzieningen
mechanische ventilatie, buitenzonwering, airconditioning, dakraam, glasvezel kabel, zonnepanelen, natuurlijke ventilatie
Isolatie
volledig geisoleerd

Energie

Energielabel
A
Verwarming
cv ketel
Warm water
cv ketel
C.V.-ketel
gas gestookte combi-ketel uit 2017 van Itho daalderop, eigendom

Document(en)



Plattegrond(en)

Plattegrond 1 Plattegrond 2 Plattegrond 3

Enthousiast geworden? Dan is het tijd om door te pakken!

Maak een afspraak en plan een bezichtiging.

0345-632100 info@vanekerenkuiper.nl
Doorpakken!
Venster sluiten
Spiegellaan 12, afbeelding 0
Spiegellaan 12, afbeelding 1
Spiegellaan 12, afbeelding 2
Spiegellaan 12, afbeelding 3
Spiegellaan 12, afbeelding 4
Spiegellaan 12, afbeelding 5
Spiegellaan 12, afbeelding 6
Spiegellaan 12, afbeelding 7
Spiegellaan 12, afbeelding 8
Spiegellaan 12, afbeelding 9
Spiegellaan 12, afbeelding 10
Spiegellaan 12, afbeelding 11
Spiegellaan 12, afbeelding 12
Spiegellaan 12, afbeelding 13
Spiegellaan 12, afbeelding 14
Spiegellaan 12, afbeelding 15
Spiegellaan 12, afbeelding 16
Spiegellaan 12, afbeelding 17
Spiegellaan 12, afbeelding 18
Spiegellaan 12, afbeelding 19
Spiegellaan 12, afbeelding 20
Spiegellaan 12, afbeelding 21
Spiegellaan 12, afbeelding 22
Spiegellaan 12, afbeelding 23
Spiegellaan 12, afbeelding 24
Spiegellaan 12, afbeelding 25
Spiegellaan 12, afbeelding 26
Spiegellaan 12, afbeelding 27
Spiegellaan 12, afbeelding 28
Spiegellaan 12, afbeelding 29
Spiegellaan 12, afbeelding 30
Spiegellaan 12, afbeelding 31
Spiegellaan 12, afbeelding 32
Spiegellaan 12, afbeelding 33
Spiegellaan 12, afbeelding 34
Spiegellaan 12, afbeelding 35
Contact