1062

klanten beoordelen ons met een

9,3

!
Mail ons
0
Meer informatie?
Venster sluiten ×
Meer informatie?
Mijn favorieten
Je hebt geen favorieten.
Venster sluiten ×

Zoeken

Kim Smit
Meer informatie?
0
1
2
3
4
5
6
7
8
9
10
11
12
13
14
15
16
17
18
19
20
21
22
23
24
25
26
27
28
29
30
31
32
33
34
35
36
37
38
39
4205 XX GORINCHEM

Patrijzennest 1a

verkocht
Verkocht
Lines Lines
Kim Smit
Ook je woning succesvol verkopen?

Vraag een gratis waardebepaling aan.

0183-672992 info@vanekerenkuiper.nl
Bewaren

Uniek aanbod! Levensloopbestendige woning met multifunctioneel bijgebouw, zeer ruime oprit en tuinkamer.

Lees meer
  • Overzicht
  • Omschrijving
  • Kenmerken
  • Media
  • Plattegronden
  • Brochure

Omschrijving

Uniek aanbod! Levensloopbestendige woning met multifunctioneel bijgebouw, zeer ruime oprit en tuinkamer.

- Nagenoeg gehele woning is in 2023 uitgebouwd, verbouwd, verduurzaamd en gemoderniseerd
- Riante tuin op het zonnige zuiden met bijgebouw, tuinkamer en tweede berging
- Gelijkvloers wonen met slaap- en badkamer op begane grond en extra kamer op de verdieping
- Energielabel A, zeer goed geïsoleerd, gasloos en 22 zonnepanelen
- Circa 104 m² woonoppervlakte en circa 77 m² aan externe (berg)ruimte

Ben je op zoek naar een woning waar je zó in kunt? Deze uitgebouwde en...
Lees meer

Kenmerken

Soort object Eengezinswoning
Bouwjaar 1993
Aantal kamers 3
Woonoppervlakte 104 m2
Bekijk alle kenmerken

Omschrijving

Uniek aanbod! Levensloopbestendige woning met multifunctioneel bijgebouw, zeer ruime oprit en tuinkamer.

- Nagenoeg gehele woning is in 2023 uitgebouwd, verbouwd, verduurzaamd en gemoderniseerd
- Riante tuin op het zonnige zuiden met bijgebouw, tuinkamer en tweede berging
- Gelijkvloers wonen met slaap- en badkamer op begane grond en extra kamer op de verdieping
- Energielabel A, zeer goed geïsoleerd, gasloos en 22 zonnepanelen
- Circa 104 m² woonoppervlakte en circa 77 m² aan externe (berg)ruimte

Ben je op zoek naar een woning waar je zó in kunt? Deze uitgebouwde en grotendeels gemoderniseerde woning in de geliefde Gorcumse Haarwijk is klaar voor een nieuwe bewoner.

Binnen is het strak, comfortabel en slim ingedeeld. Door de uitbouw is er op de begane grond een mooie leefruimte ontstaan en voelt het geheel zeer prettig aan. Met onder andere een moderne badkamer, een open keuken met alles erop en eraan, airco’s die verwarmen plus koelen en HUE-verlichting voor de juiste sfeer. Door de gehele woning is overal aan gedacht. De etage biedt extra ruimte; perfect te gebruiken als extra slaapkamer, werkkamer of logeerruimte.

Ook buiten is het goed toeven. Het multifunctionele bijgebouw (te gebruiken als bijvoorbeeld hobby- of werkruimte) van circa 45 m² is geïsoleerd, voorzien van eigen pelletkachel (ter overname), witgoedaansluitingen, een separaat toilet en een keukenblok met spoelbak en afzuigkap. Door middel van een vaste trap is de eerste verdieping te bereiken welke op dit moment dienst doet als ruime bergzolder. Er is toegang middels de dubbele deuren aan de voorzijde of de enkele loopdeur aan de zijkant. 

De zonnige tuin op het zuiden biedt rust én ruimte en is ingericht met sierbestrating en diverse groenvoorzieningen; er is een tuinkamer met glazen deuren en extra schuur. En parkeren? Gewoon op je eigen oprit, achter de poort. Geschikt voor meerdere auto's, camper of aanhanger. Tevens met laadpaal (ter overname).

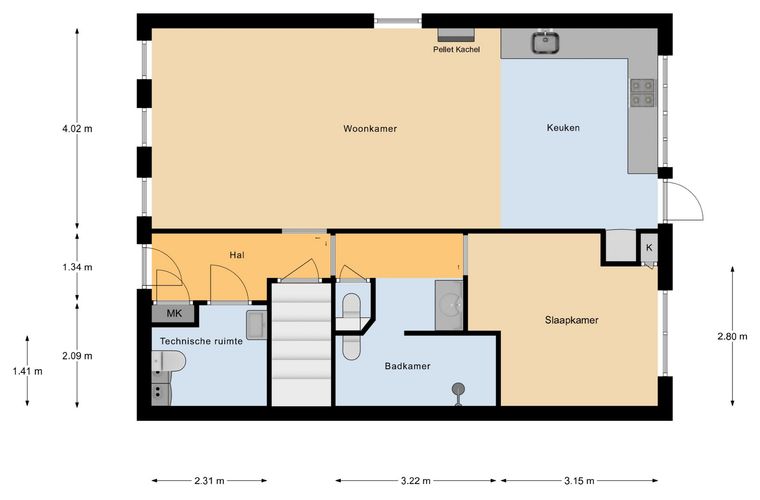
Globale indeling:
Begane grond: entree; hal met meterkast; voormalige badkamer, thans in gebruik als technische ruimte met twee waterwarmtepompen, solar edge-systeem, wastafelmeubel en toilet; afgesloten trapopgang naar de eerste verdieping; separaat toilet; schuifdeur naar tweede badkamer met wastafelmeubel, verwarmde spiegel, toilet en inloopdouche; doorgang naar slaapkamer met airco en kastenwand; woonkamer met pelletkachel (ter overname) en airco; open keuken in hoekopstelling voorzien van magnetron, oven, vaatwasser, Quooker, 4-pits inductieplaat met geïntegreerde afzuiging, separate koelkast met ijsmaker en vriezer en deur naar de tuin.

Eerste verdieping; bereikbaar via vaste trap; ruime overloop met boileropstelling en MV unit; tweede slaapkamer met dakraam, kastenwand, airco en berging achter de knieschotten.

Goed om te weten: 
- De pelletkachel is geplaatst in 2024 (ter overname)
- Alle airco’s kunnen zowel koelen als verwarmen
- Er is HUE verlichting aanwezig op de begane grond
- Voorbereiding voor camerabewaking aanwezig
- De aansluiting voor een buitendouche is voorbereid
- Begane grond voorzien van een gietvloer met vloerverwarming
- 22 zonnepanelen aanwezig met thuis accu's (totaal 23KW, ter overname)
- Volledig nieuwe groepenkast (en bedrading) inclusief 3 fase aansluiting
- De aanbouw over de gehele breedte is voorzien van kunststof kozijnen, ramen en deur

Ligging: de woning is gelegen in de Haarwijk, met ongeveer 6.200 inwoners, is een perfecte woonplek voor gezinnen. De wijk biedt alles wat je nodig hebt: een winkelcentrum, sportfaciliteiten, scholen en een apotheek, allemaal op loopafstand. Het sfeervolle centrum van Gorinchem ligt op slechts vijf minuten fietsen, met gezellige winkelstraten, terrassen en horecagelegenheden rondom de Grote Markt. Gorinchem heeft een zeer centrale ligging in Nederland. Via knooppunt Gorinchem ben je snel op de A27, A15 of A2, waardoor steden zoals Breda, Utrecht, Den Bosch en Rotterdam binnen 30 minuten te bereiken zijn. Haarwijk combineert een kindvriendelijke en comfortabele woonomgeving met uitstekende voorzieningen en een centrale ligging. Een ideale plek om te wonen!

Overdracht

Status
verkocht
Aanvaarding
in overleg

Oppervlakten en inhoud

Woonoppervlakte
104 m²
Perceeloppervlakte
331 m²
Inhoud
364 m³
Bergruimte oppervlakte
77 m²

Indeling

Aantal kamers
3
Aantal slaapkamers
2

Buitenruimte

Ligging
aan rustige weg, in woonwijk
Tuin
achtertuin met een oppervlakte van 172 m² en is gelegen op het zuiden

Bouw

Soort woning
woonhuis
Soort woonhuis
eengezinswoning
Type woonhuis
hoekwoning
Aantal woonlagen
2
Bouwvorm
bestaande bouw
Bouwjaar
1993
Huidige bestemming
woonruimte
Onderhoud binnen
goed
Onderhoud buiten
goed
Voorzieningen
mechanische ventilatie, tv kabel, airconditioning, rookkanaal, dakraam, zonnepanelen, natuurlijke ventilatie
Isolatie
dakisolatie, muurisolatie, vloerisolatie, dubbel glas

Energie

Energielabel
A
Verwarming
vloerverwarming gedeeltelijk, elektrische verwarming, pelletkachel

Document(en)



Plattegrond(en)

Plattegrond 1 Plattegrond 2 Plattegrond 3 Plattegrond 4

Enthousiast geworden? Dan is het tijd om door te pakken!

Maak een afspraak en plan een bezichtiging.

0183-672992 info@vanekerenkuiper.nl
Doorpakken!
Venster sluiten
Patrijzennest 1a, afbeelding 0
Patrijzennest 1a, afbeelding 1
Patrijzennest 1a, afbeelding 2
Patrijzennest 1a, afbeelding 3
Patrijzennest 1a, afbeelding 4
Patrijzennest 1a, afbeelding 5
Patrijzennest 1a, afbeelding 6
Patrijzennest 1a, afbeelding 7
Patrijzennest 1a, afbeelding 8
Patrijzennest 1a, afbeelding 9
Patrijzennest 1a, afbeelding 10
Patrijzennest 1a, afbeelding 11
Patrijzennest 1a, afbeelding 12
Patrijzennest 1a, afbeelding 13
Patrijzennest 1a, afbeelding 14
Patrijzennest 1a, afbeelding 15
Patrijzennest 1a, afbeelding 16
Patrijzennest 1a, afbeelding 17
Patrijzennest 1a, afbeelding 18
Patrijzennest 1a, afbeelding 19
Patrijzennest 1a, afbeelding 20
Patrijzennest 1a, afbeelding 21
Patrijzennest 1a, afbeelding 22
Patrijzennest 1a, afbeelding 23
Patrijzennest 1a, afbeelding 24
Patrijzennest 1a, afbeelding 25
Patrijzennest 1a, afbeelding 26
Patrijzennest 1a, afbeelding 27
Patrijzennest 1a, afbeelding 28
Patrijzennest 1a, afbeelding 29
Patrijzennest 1a, afbeelding 30
Patrijzennest 1a, afbeelding 31
Patrijzennest 1a, afbeelding 32
Patrijzennest 1a, afbeelding 33
Patrijzennest 1a, afbeelding 34
Patrijzennest 1a, afbeelding 35
Patrijzennest 1a, afbeelding 36
Patrijzennest 1a, afbeelding 37
Patrijzennest 1a, afbeelding 38
Patrijzennest 1a, afbeelding 39
Contact