1062

klanten beoordelen ons met een

9,3

!
Mail ons
0
Meer informatie?
Venster sluiten ×
Meer informatie?
Mijn favorieten
Je hebt geen favorieten.
Venster sluiten ×

Zoeken

Jeroen Posthumus
Meer informatie?
0
1
2
3
4
5
6
7
8
9
10
11
12
13
14
15
16
17
18
19
20
21
22
23
24
25
26
27
28
29
30
31
32
33
34
35
36
37
38
39
40
41
42
43
44
45
46
47
48
49
50
51
52
4145 NB SCHOONREWOERD

M.E.L. Westenburgstraat 11

verkocht
Verkocht
Lines Lines
Jeroen
Ook je woning succesvol verkopen?

Vraag een gratis waardebepaling aan.

0345-632100 info@vanekerenkuiper.nl
Bewaren

Originele split-level woning met vrij uitzicht en energielabel A!

Lees meer
  • Overzicht
  • Omschrijving
  • Kenmerken
  • Media
  • Plattegronden
  • Brochure

Omschrijving

Originele split-level woning met vrij uitzicht en energielabel A!

- Energielabel A én 20 zonnepanelen op het dak
- Speelse indeling met vide, gashaard en hoge raampartijen
- Inpandige parkeerkelder, carport, 2 bergingen en 2 balkons

Zodra je hier binnenstapt, weet je: dit is geen standaard huis. Deze 2-onder-1 kapwoning in Schoonrewoerd is allesbehalve saai. Met z’n unieke split-level indeling, een indrukwekkende vide, een karakteristieke gashaard met forse schouw en grote raampartijen die voor licht en ruimte zorgen. En het wordt nog beter: de woning heeft een inpandige kelder, drie slaapkamers op...
Lees meer

Kenmerken

Soort object Eengezinswoning
Bouwjaar 1975
Aantal kamers 7
Woonoppervlakte 168 m2
Bekijk alle kenmerken

Omschrijving

Originele split-level woning met vrij uitzicht en energielabel A!

- Energielabel A én 20 zonnepanelen op het dak
- Speelse indeling met vide, gashaard en hoge raampartijen
- Inpandige parkeerkelder, carport, 2 bergingen en 2 balkons

Zodra je hier binnenstapt, weet je: dit is geen standaard huis. Deze 2-onder-1 kapwoning in Schoonrewoerd is allesbehalve saai. Met z’n unieke split-level indeling, een indrukwekkende vide, een karakteristieke gashaard met forse schouw en grote raampartijen die voor licht en ruimte zorgen. En het wordt nog beter: de woning heeft een inpandige kelder, drie slaapkamers op de eerste verdieping, een zolder met extra kamer én twee balkons. Buiten geniet je van een keurig aangelegde tuin met vrij uitzicht over de weilanden – wat een rust! De woning is door de jaren heen netjes onderhouden en voorzien van maar liefst 20 zonnepanelen, wat bijdraagt aan het zuinige energielabel A. Wellicht kun je op een paar plekken wat moderniseren, maar de basis staat als een huis.

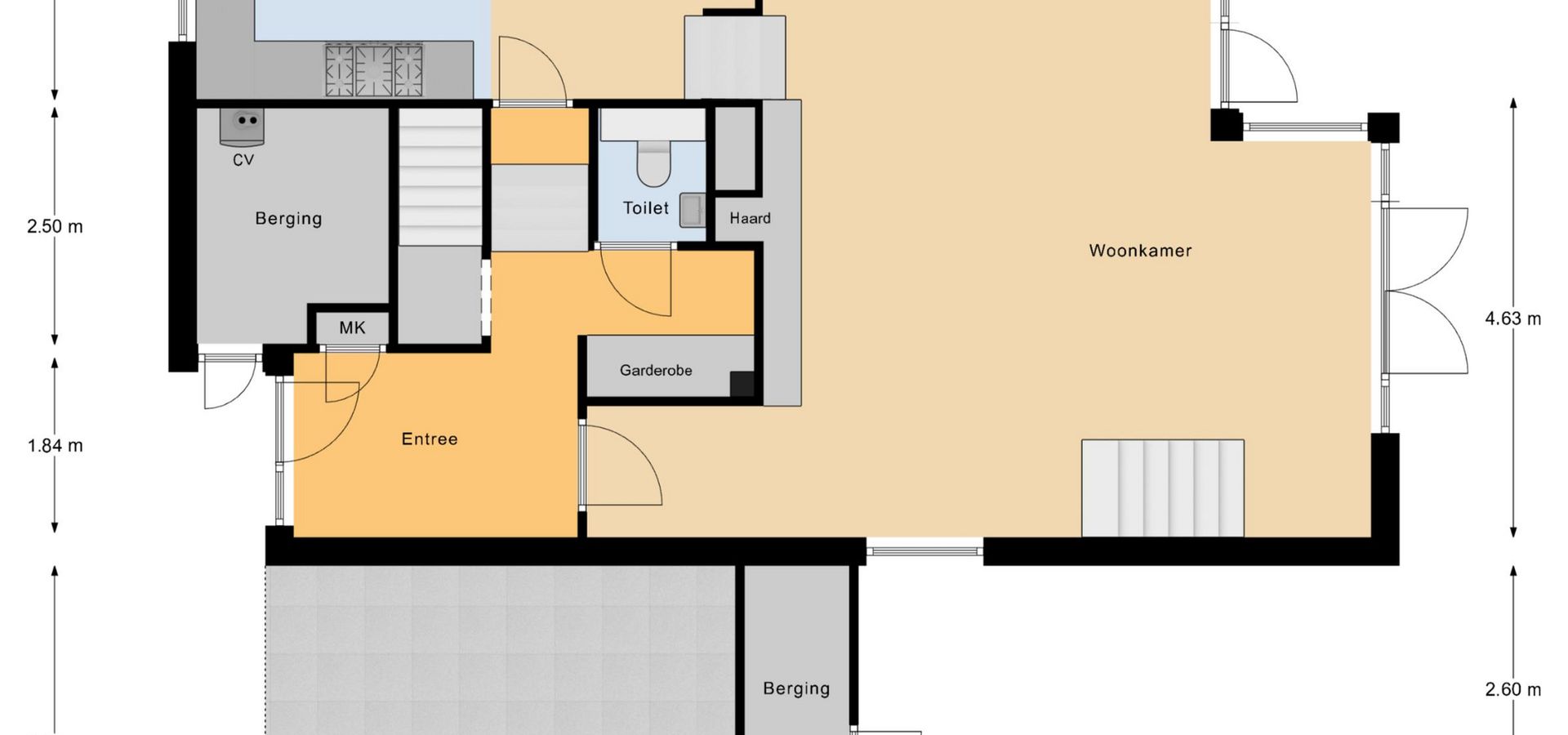
De globale indeling:

Begane grond: entree in de hal met meterkast, toilet, garderobe, toegang tot de inpandige kelder, de woonkamer en de keuken. Keuken aan de voorzijde van de woning voorzien van inductie kookplaat, afzuigkap, vaatwasser, koel-vriescombinatie, dubbele spoelbak en een oven. De woonkamer aan de achterzijde is lekker licht door de vele raampartijen en biedt een grote gashaard met schouw en een open trap naar de bovenverdieping. 

Eerste verdieping: overloop; drie slaapkamers, waarvan twee met balkon; badkamer met dubbele wastafel, douche, ligbad met Whirlpool systeem en een toilet; technische ruimte met wasmachineaansluitingen; extra kamer met uitzicht op de woonkamer op dit moment in gebruik als werkplek.

Tweede verdieping: voorzolder met dakraam en bergruimte; ruime vierde slaapkamer met dakraam en bergruimte achter de knieschotten.

Buiten: carport naast de woning; twee bergingen( 1 in de carport, 1 aan de voorzijde van het huis); parkeerkelder onder de keuken; verzorgde achtertuin met buitenkraan, zonwering aan de achtergevel en zicht op de weilanden.

Goed om te weten:
- De keuken & badkamer zijn voorzien van vloerverwarming.
- Op het dak zijn 20 zonnepanelen gevestigd.
- De dakramen zijn voorzien van inbouwhorren en/of zonwerende screens. 

Ligging: Schoonrewoerd is sinds 1984 een dorp in de gemeente Leerdam en heeft circa 1600 inwoners. In 1023 is het dorp gesticht door Jan van Arkel. Het sfeervolle dorp is bekend van het Schoonrewoerdse Wiel, het grootste wiel van Nederland. Deze wiel is ontstaan bij een dijkdoorbraak in 1573. Schoonrewoerd is gesitueerd in een mooie groene woonomgeving, centraal in het land. In de nabije omgeving is de A2 (Utrecht-'s Hertogenbosch) bereikbaar. Op enkele minuten treft u het centrum van Leerdam, met diverse winkels, scholen en sportvoorzieningen.

Overdracht

Status
verkocht
Aanvaarding
in overleg

Oppervlakten en inhoud

Woonoppervlakte
168 m²
Perceeloppervlakte
336 m²
Inhoud
504 m³
Inpandige ruimte oppervlakte
16 m²
Bergruimte oppervlakte
8 m²
Buitenruimte oppervlakte
32 m²

Indeling

Aantal kamers
7
Aantal slaapkamers
4

Buitenruimte

Ligging
aan rustige weg, in woonwijk, vrij uitzicht
Tuin
achtertuin met een oppervlakte van 109 m² en is gelegen op het zuidwesten

Bouw

Soort woning
woonhuis
Soort woonhuis
eengezinswoning
Type woonhuis
twee onder een kapwoning
Aantal woonlagen
4
Bouwvorm
bestaande bouw
Bouwjaar
1975
Huidige bestemming
woonruimte
Onderhoud binnen
goed
Onderhoud buiten
goed
Voorzieningen
mechanische ventilatie, rolluiken, tv kabel, dakraam, zonnepanelen
Isolatie
dakisolatie, muurisolatie, vloerisolatie, dubbel glas

Energie

Energielabel
A
Verwarming
cv ketel
Warm water
cv ketel
C.V.-ketel
gas gestookte combi-ketel uit 2015 van Nefit, eigendom

Document(en)



Plattegrond(en)

Plattegrond 1 Plattegrond 2 Plattegrond 3

Enthousiast geworden? Dan is het tijd om door te pakken!

Maak een afspraak en plan een bezichtiging.

0345-632100 info@vanekerenkuiper.nl
Doorpakken!
Venster sluiten
M.E.L. Westenburgstraat 11, afbeelding 0
M.E.L. Westenburgstraat 11, afbeelding 1
M.E.L. Westenburgstraat 11, afbeelding 2
M.E.L. Westenburgstraat 11, afbeelding 3
M.E.L. Westenburgstraat 11, afbeelding 4
M.E.L. Westenburgstraat 11, afbeelding 5
M.E.L. Westenburgstraat 11, afbeelding 6
M.E.L. Westenburgstraat 11, afbeelding 7
M.E.L. Westenburgstraat 11, afbeelding 8
M.E.L. Westenburgstraat 11, afbeelding 9
M.E.L. Westenburgstraat 11, afbeelding 10
M.E.L. Westenburgstraat 11, afbeelding 11
M.E.L. Westenburgstraat 11, afbeelding 12
M.E.L. Westenburgstraat 11, afbeelding 13
M.E.L. Westenburgstraat 11, afbeelding 14
M.E.L. Westenburgstraat 11, afbeelding 15
M.E.L. Westenburgstraat 11, afbeelding 16
M.E.L. Westenburgstraat 11, afbeelding 17
M.E.L. Westenburgstraat 11, afbeelding 18
M.E.L. Westenburgstraat 11, afbeelding 19
M.E.L. Westenburgstraat 11, afbeelding 20
M.E.L. Westenburgstraat 11, afbeelding 21
M.E.L. Westenburgstraat 11, afbeelding 22
M.E.L. Westenburgstraat 11, afbeelding 23
M.E.L. Westenburgstraat 11, afbeelding 24
M.E.L. Westenburgstraat 11, afbeelding 25
M.E.L. Westenburgstraat 11, afbeelding 26
M.E.L. Westenburgstraat 11, afbeelding 27
M.E.L. Westenburgstraat 11, afbeelding 28
M.E.L. Westenburgstraat 11, afbeelding 29
M.E.L. Westenburgstraat 11, afbeelding 30
M.E.L. Westenburgstraat 11, afbeelding 31
M.E.L. Westenburgstraat 11, afbeelding 32
M.E.L. Westenburgstraat 11, afbeelding 33
M.E.L. Westenburgstraat 11, afbeelding 34
M.E.L. Westenburgstraat 11, afbeelding 35
M.E.L. Westenburgstraat 11, afbeelding 36
M.E.L. Westenburgstraat 11, afbeelding 37
M.E.L. Westenburgstraat 11, afbeelding 38
M.E.L. Westenburgstraat 11, afbeelding 39
M.E.L. Westenburgstraat 11, afbeelding 40
M.E.L. Westenburgstraat 11, afbeelding 41
M.E.L. Westenburgstraat 11, afbeelding 42
M.E.L. Westenburgstraat 11, afbeelding 43
M.E.L. Westenburgstraat 11, afbeelding 44
M.E.L. Westenburgstraat 11, afbeelding 45
M.E.L. Westenburgstraat 11, afbeelding 46
M.E.L. Westenburgstraat 11, afbeelding 47
M.E.L. Westenburgstraat 11, afbeelding 48
M.E.L. Westenburgstraat 11, afbeelding 49
M.E.L. Westenburgstraat 11, afbeelding 50
M.E.L. Westenburgstraat 11, afbeelding 51
M.E.L. Westenburgstraat 11, afbeelding 52
Contact