1062

klanten beoordelen ons met een

9,3

!
Mail ons
0
Meer informatie?
Venster sluiten ×
Meer informatie?
Mijn favorieten
Je hebt geen favorieten.
Venster sluiten ×

Zoeken

Dennis Kuiper
Meer informatie?
0
1
2
3
4
5
6
7
8
9
10
11
12
13
14
15
16
17
18
19
20
21
22
23
24
25
26
27
28
29
30
31
32
33
34
35
36
4171 BV HERWIJNEN

Meerenburg 22

verkocht
Verkocht
Lines Lines
Dennis Kuiper
Ook je woning succesvol verkopen?

Vraag een gratis waardebepaling aan.

0183-672992 info@vanekerenkuiper.nl
Bewaren

Rust, ruimte en volop mogelijkheden aan de Meerenburg 22!

Lees meer
  • Overzicht
  • Omschrijving
  • Kenmerken
  • Media
  • Plattegronden
  • Brochure

Omschrijving

Rust, ruimte en volop mogelijkheden aan de Meerenburg 22!

- Twee-onder-een-kap woning met garage & carport.
- Brede en verzorgd aangelegde groene achtertuin. 
- Praktische indeling met ruime slaapkamers.

In deze goed onderhouden twee-onder-een-kap woning geniet je van ruim 120 m² woonoppervlakte ingedeeld met een lichte woonkamer, complete keuken, 3 slaapkamers en een badkamer. Daarnaast kan er op zolder nog een vierde slaapkamer gerealiseerd worden mocht je deze nodig hebben. Met de inpandig te bereiken garage en carport aan het huis heb je hier volop praktische ruimte. De speelse indeling...
Lees meer

Kenmerken

Soort object Eengezinswoning
Bouwjaar 1993
Aantal kamers 5
Woonoppervlakte 123 m2
Bekijk alle kenmerken

Omschrijving

Rust, ruimte en volop mogelijkheden aan de Meerenburg 22!

- Twee-onder-een-kap woning met garage & carport.
- Brede en verzorgd aangelegde groene achtertuin. 
- Praktische indeling met ruime slaapkamers.

In deze goed onderhouden twee-onder-een-kap woning geniet je van ruim 120 m² woonoppervlakte ingedeeld met een lichte woonkamer, complete keuken, 3 slaapkamers en een badkamer. Daarnaast kan er op zolder nog een vierde slaapkamer gerealiseerd worden mocht je deze nodig hebben. Met de inpandig te bereiken garage en carport aan het huis heb je hier volop praktische ruimte. De speelse indeling maakt dit huis uniek en samen met een gunstig energielabel A en de ligging aan een rustige straat is dit een heel fijn wonen!

De globale indeling:

Begane grond: entree in de hal met meterkast, trapopgang, toegang naar de garage en de woonruimte. De woonruimte op de begane grond is ingedeeld met de keuken aan de voorzijde welke is voorzien van een koelkast, combi-oven, vaatwasser, 4-pits inductiekookplaat, afzuigkap en een spoelbak. Het zitgedeelte aan de achterzijde biedt middels een grote schuifpui toegang tot de achtertuin. De garage heeft een spoelbak, de witgoedaansluitingen en aan zowel de voor- als achterzijde een loopdeur. 

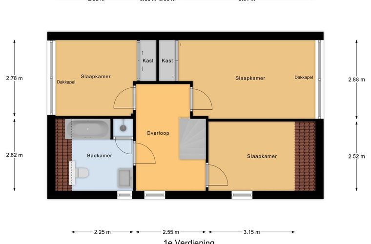
Eerste verdieping: overloop met toegang tot de drie slaapkamers en de badkamer welke compleet is met een ligbad, douchecabine, toilet en wastafel. Twee van de slaapkamers hebben een vaste inbouwkast.

Tweede verdieping: open zolderverdieping met de cv-ketel.

Goed om te weten: 
- De achtergevel is op de begane grond voorzien van een zonnescherm en de ramen van screens, beide zijn elektrisch te bedienen.
- Op de eerste verdieping is de master bedroom voorzien van een elektrisch rolluik. 
- Op het dak zijn 10 zonnepanelen bevestigd. 
- Voorzien van een geldig energielabel A.

Ligging: Wanneer je vanuit Tiel de rivier de Waal stroomafwaarts volgt met aan de zuidelijke kant het land van Maas en Waal, dan vindt je, vlak voor het punt waar de Maas en de Waal samen bij het historische slot “Loevestein” de Merwede gaan vormen, het Gelderse rivierdorpje Herwijnen. Aan de noordelijke kant ligt het rustieke Betuwse landschap. Het dorp ligt centraal gelegen op enkele minuten van de Rijkswegen A27, A15 en A2. Steden als Den Bosch, Utrecht en Rotterdam zijn bereikbaar in circa 30 autominuten. Het dorp heeft zijn eigen winkelkern en diverse sport- en vereniging accommodaties. Vanaf 1 januari 2019 maakt Herwijnen deel uit van de gemeente West-Betuwe.

Overdracht

Status
verkocht
Aanvaarding
in overleg

Oppervlakten en inhoud

Woonoppervlakte
123 m²
Perceeloppervlakte
365 m²
Inhoud
430 m³
Inpandige ruimte oppervlakte
18 m²

Indeling

Aantal kamers
5
Aantal slaapkamers
4

Buitenruimte

Ligging
aan rustige weg, in woonwijk
Tuin
achtertuin met een oppervlakte van 175 m² en is gelegen op het westen

Bouw

Soort woning
woonhuis
Soort woonhuis
eengezinswoning
Type woonhuis
twee onder een kapwoning
Aantal woonlagen
3
Bouwvorm
bestaande bouw
Bouwjaar
1993
Huidige bestemming
woonruimte
Onderhoud binnen
redelijk_tot_goed
Onderhoud buiten
redelijk_tot_goed
Voorzieningen
mechanische ventilatie, rolluiken, tv kabel, buitenzonwering, zonnepanelen
Isolatie
dakisolatie, muurisolatie, vloerisolatie, dubbel glas

Energie

Energielabel
A
Verwarming
cv ketel
Warm water
cv ketel
C.V.-ketel
gas gestookte combi-ketel uit 2015 van ATAG, eigendom

Document(en)



Plattegrond(en)

Plattegrond 1 Plattegrond 2 Plattegrond 3

Enthousiast geworden? Dan is het tijd om door te pakken!

Maak een afspraak en plan een bezichtiging.

0183-672992 info@vanekerenkuiper.nl
Doorpakken!
Venster sluiten
Meerenburg 22, afbeelding 0
Meerenburg 22, afbeelding 1
Meerenburg 22, afbeelding 2
Meerenburg 22, afbeelding 3
Meerenburg 22, afbeelding 4
Meerenburg 22, afbeelding 5
Meerenburg 22, afbeelding 6
Meerenburg 22, afbeelding 7
Meerenburg 22, afbeelding 8
Meerenburg 22, afbeelding 9
Meerenburg 22, afbeelding 10
Meerenburg 22, afbeelding 11
Meerenburg 22, afbeelding 12
Meerenburg 22, afbeelding 13
Meerenburg 22, afbeelding 14
Meerenburg 22, afbeelding 15
Meerenburg 22, afbeelding 16
Meerenburg 22, afbeelding 17
Meerenburg 22, afbeelding 18
Meerenburg 22, afbeelding 19
Meerenburg 22, afbeelding 20
Meerenburg 22, afbeelding 21
Meerenburg 22, afbeelding 22
Meerenburg 22, afbeelding 23
Meerenburg 22, afbeelding 24
Meerenburg 22, afbeelding 25
Meerenburg 22, afbeelding 26
Meerenburg 22, afbeelding 27
Meerenburg 22, afbeelding 28
Meerenburg 22, afbeelding 29
Meerenburg 22, afbeelding 30
Meerenburg 22, afbeelding 31
Meerenburg 22, afbeelding 32
Meerenburg 22, afbeelding 33
Meerenburg 22, afbeelding 34
Meerenburg 22, afbeelding 35
Meerenburg 22, afbeelding 36
Contact