1062

klanten beoordelen ons met een

9,3

!
Mail ons
0
Meer informatie?
Venster sluiten ×
Meer informatie?
Mijn favorieten
Je hebt geen favorieten.
Venster sluiten ×

Zoeken

Jeroen Posthumus
Meer informatie?
0
1
2
3
4
5
6
7
8
9
10
11
12
13
14
15
16
17
18
19
20
21
22
23
24
25
26
27
28
29
30
3351 CS PAPENDRECHT

L. van Deijsselstraat 12

verkocht
Verkocht
Lines Lines
Jeroen
Ook je woning succesvol verkopen?

Vraag een gratis waardebepaling aan.

078-6159960 info@vanekerenkuiper.nl
Bewaren

Uitgebouwde hoekwoning met 4 slaapkamers, airco en een vrijwel nieuwe keuken (2024)!

Lees meer
  • Overzicht
  • Omschrijving
  • Kenmerken
  • Media
  • Plattegronden
  • Brochure

Omschrijving

Uitgebouwde hoekwoning met 4 slaapkamers, airco en een vrijwel nieuwe keuken (2024)!

- Deze fraaie woning met zonnige tuin is gelegen in de geliefde wijk Westpolder.
- Geniet op dit adres van een riante woonkamer, keurige keuken (2024) en nette badkamer (2019)!
- In de directe omgeving bevinden zich diverse voorzieningen, zoals scholen, winkels en een kinderspeeltuin op loopafstand.

Globale indeling

Begane grond: via de verzorgde voortuin bereik je de entree met hal, meterkast, trapkast, nette toiletruimte (2024) en de trapopgang naar de eerste verdieping.

De...
Lees meer

Kenmerken

Soort object Eengezinswoning
Bouwjaar 1968
Aantal kamers 5
Woonoppervlakte 111 m2
Bekijk alle kenmerken

Omschrijving

Uitgebouwde hoekwoning met 4 slaapkamers, airco en een vrijwel nieuwe keuken (2024)!

- Deze fraaie woning met zonnige tuin is gelegen in de geliefde wijk Westpolder.
- Geniet op dit adres van een riante woonkamer, keurige keuken (2024) en nette badkamer (2019)!
- In de directe omgeving bevinden zich diverse voorzieningen, zoals scholen, winkels en een kinderspeeltuin op loopafstand.

Globale indeling

Begane grond: via de verzorgde voortuin bereik je de entree met hal, meterkast, trapkast, nette toiletruimte (2024) en de trapopgang naar de eerste verdieping.

De royale woonkamer is licht en ruim te noemen, met vrij uitzicht op de Willem Kloosstraat. Geniet van veel daglicht dankzij de grote raampartijen aan zowel de voor- als achterzijde.

Via schuifdeuren bereik je de recent vernieuwde keuken! De luxe keuken beschikt o.a. over een Bora-kookplaat met interne afzuiging. Verder is de inbouwapparatuur van het merk Bosch. De woonkamer en keuken zijn uitgevoerd met een PVC-vloer (verlijmd, 2024). Vanuit de keuken is de tuin bereikbaar.

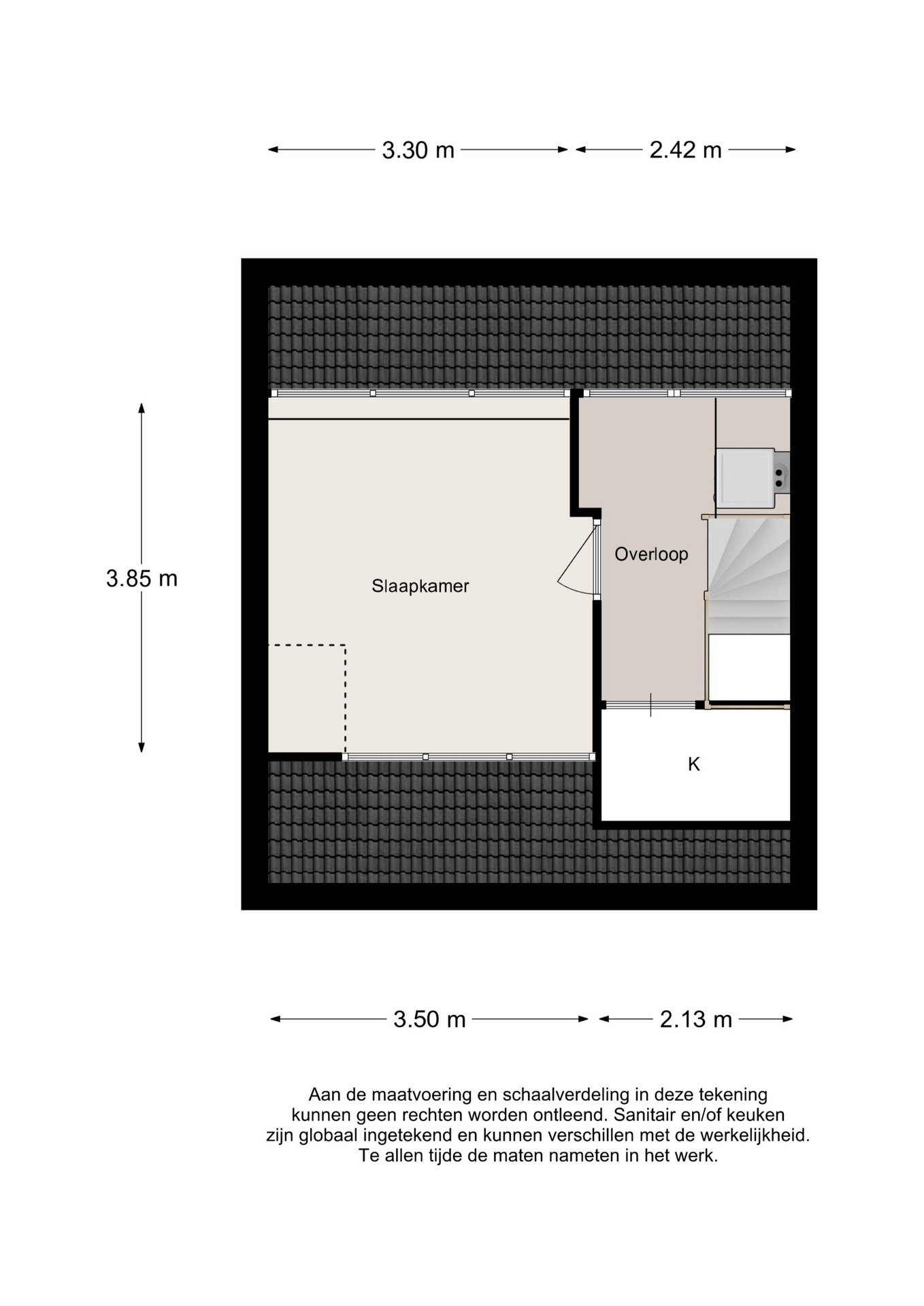
Eerste verdieping: op de eerste verdieping bevinden zich drie slaapkamers (waarvan 2 met airconditioning) en de badkamer.

De nette badkamer (2019) is uitgevoerd met een tweede toilet, douche en badkamermeubel.

Tweede verdieping: de tweede verdieping bestaat uit een voorzolder met opstelplaats voor de cv-ketel, wasmachine/droger en een vierde slaapkamer. Mede dankzij de dakopbouw én een dakkapel is er veel ruimte ontstaan. Ook boven is airconditioning aanwezig.

Goed om te weten:
- De woning heeft energielabel C.
- De woning beschikt over houten en kunststof kozijnen (2024).
- De dakkapel is geplaatst in 2022, de airconditioning in 2024.
- De woning is uitgevoerd met buitenzonwering, waaronder rolluiken (ca. 2022).
- Aanvaarding: in overleg.

Ligging en omgeving
De woning is gelegen in de rustige en gewilde woonwijk Westpolder. In de directe omgeving bevinden zich diverse voorzieningen, zoals scholen, winkels en een kinderspeeltuin op loopafstand. Ook de bereikbaarheid is uitstekend: bushaltes liggen om de hoek, het centrum van Papendrecht is per fiets of te voet goed bereikbaar en via de N3 en A15 zijn omliggende steden als Dordrecht en Rotterdam binnen enkele minuten bereikbaar.

Overdracht

Status
verkocht
Aanvaarding
in overleg

Oppervlakten en inhoud

Woonoppervlakte
111 m²
Perceeloppervlakte
179 m²
Inhoud
415 m³
Bergruimte oppervlakte
6 m²

Indeling

Aantal kamers
5
Aantal slaapkamers
4

Buitenruimte

Ligging
in woonwijk, vrij uitzicht
Tuin
achtertuin met een oppervlakte van 63 m² en is gelegen op het noordwesten

Bouw

Soort woning
woonhuis
Soort woonhuis
eengezinswoning
Type woonhuis
hoekwoning
Aantal woonlagen
3
Bouwvorm
bestaande bouw
Bouwjaar
1968
Huidige bestemming
woonruimte
Onderhoud binnen
goed
Onderhoud buiten
goed
Voorzieningen
rolluiken, buitenzonwering, airconditioning
Isolatie
dubbel glas

Energie

Energielabel
C
Verwarming
cv ketel
Warm water
cv ketel
C.V.-ketel
(gas gestookt combiketel, uit 2014, eigendom)

Document(en)



Plattegrond(en)

Plattegrond 1 Plattegrond 2 Plattegrond 3 Plattegrond 4

Enthousiast geworden? Dan is het tijd om door te pakken!

Maak een afspraak en plan een bezichtiging.

078-6159960 info@vanekerenkuiper.nl
Doorpakken!
Venster sluiten
L. van Deijsselstraat 12, afbeelding 0
L. van Deijsselstraat 12, afbeelding 1
L. van Deijsselstraat 12, afbeelding 2
L. van Deijsselstraat 12, afbeelding 3
L. van Deijsselstraat 12, afbeelding 4
L. van Deijsselstraat 12, afbeelding 5
L. van Deijsselstraat 12, afbeelding 6
L. van Deijsselstraat 12, afbeelding 7
L. van Deijsselstraat 12, afbeelding 8
L. van Deijsselstraat 12, afbeelding 9
L. van Deijsselstraat 12, afbeelding 10
L. van Deijsselstraat 12, afbeelding 11
L. van Deijsselstraat 12, afbeelding 12
L. van Deijsselstraat 12, afbeelding 13
L. van Deijsselstraat 12, afbeelding 14
L. van Deijsselstraat 12, afbeelding 15
L. van Deijsselstraat 12, afbeelding 16
L. van Deijsselstraat 12, afbeelding 17
L. van Deijsselstraat 12, afbeelding 18
L. van Deijsselstraat 12, afbeelding 19
L. van Deijsselstraat 12, afbeelding 20
L. van Deijsselstraat 12, afbeelding 21
L. van Deijsselstraat 12, afbeelding 22
L. van Deijsselstraat 12, afbeelding 23
L. van Deijsselstraat 12, afbeelding 24
L. van Deijsselstraat 12, afbeelding 25
L. van Deijsselstraat 12, afbeelding 26
L. van Deijsselstraat 12, afbeelding 27
L. van Deijsselstraat 12, afbeelding 28
L. van Deijsselstraat 12, afbeelding 29
L. van Deijsselstraat 12, afbeelding 30
Contact