1062

klanten beoordelen ons met een

9,3

!
Mail ons
0
Meer informatie?
Venster sluiten ×
Meer informatie?
Mijn favorieten
Je hebt geen favorieten.
Venster sluiten ×

Zoeken

Dennis Kuiper
Meer informatie?
0
1
2
3
4
5
6
7
8
9
10
11
12
13
14
15
16
17
18
19
20
21
22
23
24
25
26
27
28
29
30
31
32
33
34
35
36
37
38
39
40
41
4141 EB LEERDAM

Koningin Emmalaan 93

verkocht
Verkocht
Lines Lines
Dennis Kuiper
Ook je woning succesvol verkopen?

Vraag een gratis waardebepaling aan.

0345-632100 info@vanekerenkuiper.nl
Bewaren

Een woning met ruimte, potentie én een extra grote garage!

Lees meer
  • Overzicht
  • Omschrijving
  • Kenmerken
  • Media
  • Plattegronden
  • Brochure

Omschrijving

Een woning met ruimte, potentie én een extra grote garage!

- Veel pluspunten buiten met een fijne tuin, eigen oprit en vrijstaande garage!
- Gelegen in een prettige woonwijk op loopafstand van het centrum.
- Vier slaapkamers en in totaal circa 93 m² woonoppervlakte. 

Ben jij niet bang om je handen uit de mouwen te steken? Dan is dit je kans! Aan de Koningin Emmalaan 93 in Leerdam staat een woning die klaar is voor een frisse blik. Alles staat leeg, dus je kunt er direct mee aan de slag. De...
Lees meer

Kenmerken

Soort object Eengezinswoning
Bouwjaar 1965
Aantal kamers 5
Woonoppervlakte 93 m2
Bekijk alle kenmerken

Omschrijving

Een woning met ruimte, potentie én een extra grote garage!

- Veel pluspunten buiten met een fijne tuin, eigen oprit en vrijstaande garage!
- Gelegen in een prettige woonwijk op loopafstand van het centrum.
- Vier slaapkamers en in totaal circa 93 m² woonoppervlakte. 

Ben jij niet bang om je handen uit de mouwen te steken? Dan is dit je kans! Aan de Koningin Emmalaan 93 in Leerdam staat een woning die klaar is voor een frisse blik. Alles staat leeg, dus je kunt er direct mee aan de slag. De basis is er: vier slaapkamers, een lichte woonkamer en een flinke tuin met oprit en garage. De woonkamer is lekker licht dankzij de grote ramen, en de airco op de slaapkamer zorgt ervoor dat je ook in de zomer goed slaapt. De garage is destijds vergroot wat je de ruimte biedt om naast te parkeren hier ook nog te klussen! Qua ligging is deze woning ook heel fijn! Het Leerdamse centrum is op loopafstand en verder heb je direct voor de deur vrijwel alleen bestemmingsverkeer. Scholen, sportverenigingen en uitvalswegen zijn ook allemaal binnen handbereik.

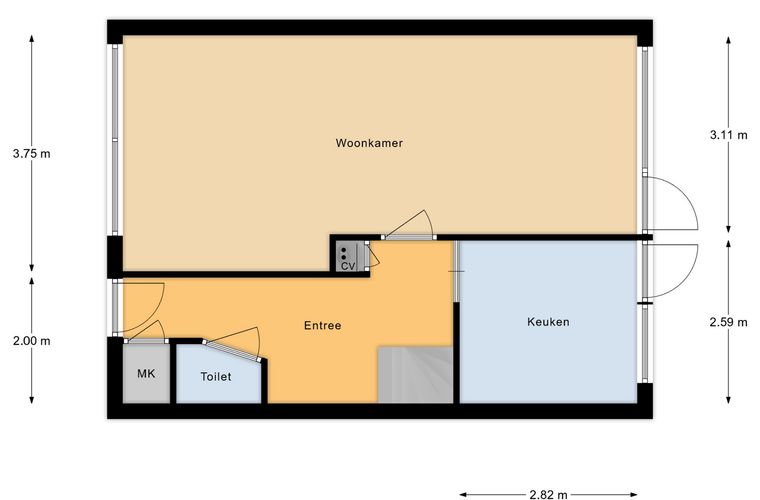
De globale indeling: 

Begane grond: entree, hal, meterkast, toilet, toegang tot de keuken en de woonkamer; de dichte keuken is voorzien van een spoelbak met wateraansluiting en kastruimte, via de keuken loop je ook naar de achtertuin; de woonkamer is licht door de grote raampartijen, als het te licht wordt heb je handmatige zonwering aan de voorzijde van de woning. 

Eerste verdieping: overloop, toegang tot vier slaapkamers, badkamer en de vliering, deze is te bereiken met een vlizotrap; de badkamer is voorzien van een wastafel met meubel, toilet en een inloopdouche; de master bedroom is voorzien van airconditioning en biedt toegang tot het balkon aan de voorzijde. 

Vliering: via een vlizotrap bereikbaar, goed voor opbergen van spullen.

Buiten: via de keuken of de woonkamer kom je in de achtertuin; deze is voorzien van veel groen, ruimte om je auto te parkeren en toegang tot de zijtuin die doorloopt naar de voortuin; de tuin heeft een vergrootte garage van circa 25 m², deze is voorzien van elektra en een handmatige kanteldeur.

Goed om te weten: 
- Balkon aan de voorzijde van de woning.
- Energielabel C.
- De badkamer is enkele jaren geleden gerenoveerd.
- De ramen aan de voorzijde zijn op de begane grond voorzien van screens. 
- De getoonde bergvliering op de foto's is niet meegerekend in het genoemde woonoppervlakte.

Ligging: Leerdam, gelegen aan de Linge in de gemeente Vijfheerenlanden met ongeveer 21.000 inwoners. De stad staat bekend als de Glasstad, met een rijke historie en het Nationaal Glasmuseum als belangrijk cultureel middelpunt. Naast winkels, supermarkten en gezellige horecagelegenheden beschikt Leerdam over meerdere basisscholen, een middelbare school en uitgebreide sportfaciliteiten, zoals een zwembad, sportscholen en sportverenigingen. Leerdam is uitstekend bereikbaar via de A2 en A15 en heeft een treinstation met verbindingen naar Utrecht, Geldermalsen en Dordrecht/Rotterdam.

Overdracht

Status
verkocht
Aanvaarding
in overleg

Oppervlakten en inhoud

Woonoppervlakte
93 m²
Perceeloppervlakte
210 m²
Inhoud
280 m³
Bergruimte oppervlakte
25 m²
Buitenruimte oppervlakte
3 m²

Indeling

Aantal kamers
5
Aantal slaapkamers
4

Buitenruimte

Ligging
in woonwijk
Tuin
achtertuin met een oppervlakte van 51 m² en is gelegen op het noordoosten

Bouw

Soort woning
woonhuis
Soort woonhuis
eengezinswoning
Type woonhuis
hoekwoning
Aantal woonlagen
3
Bouwvorm
bestaande bouw
Bouwjaar
1965
Huidige bestemming
woonruimte
Onderhoud binnen
redelijk_tot_goed
Onderhoud buiten
redelijk_tot_goed
Voorzieningen
mechanische ventilatie, tv kabel, airconditioning, natuurlijke ventilatie
Isolatie
gedeeltelijk dubbel glas

Energie

Energielabel
C
Verwarming
cv ketel
Warm water
cv ketel
C.V.-ketel
gas gestookte cv-ketel uit 2014 van Remeha, eigendom

Document(en)



Plattegrond(en)

Plattegrond 1 Plattegrond 2

Enthousiast geworden? Dan is het tijd om door te pakken!

Maak een afspraak en plan een bezichtiging.

0345-632100 info@vanekerenkuiper.nl
Doorpakken!
Venster sluiten
Koningin Emmalaan 93, afbeelding 0
Koningin Emmalaan 93, afbeelding 1
Koningin Emmalaan 93, afbeelding 2
Koningin Emmalaan 93, afbeelding 3
Koningin Emmalaan 93, afbeelding 4
Koningin Emmalaan 93, afbeelding 5
Koningin Emmalaan 93, afbeelding 6
Koningin Emmalaan 93, afbeelding 7
Koningin Emmalaan 93, afbeelding 8
Koningin Emmalaan 93, afbeelding 9
Koningin Emmalaan 93, afbeelding 10
Koningin Emmalaan 93, afbeelding 11
Koningin Emmalaan 93, afbeelding 12
Koningin Emmalaan 93, afbeelding 13
Koningin Emmalaan 93, afbeelding 14
Koningin Emmalaan 93, afbeelding 15
Koningin Emmalaan 93, afbeelding 16
Koningin Emmalaan 93, afbeelding 17
Koningin Emmalaan 93, afbeelding 18
Koningin Emmalaan 93, afbeelding 19
Koningin Emmalaan 93, afbeelding 20
Koningin Emmalaan 93, afbeelding 21
Koningin Emmalaan 93, afbeelding 22
Koningin Emmalaan 93, afbeelding 23
Koningin Emmalaan 93, afbeelding 24
Koningin Emmalaan 93, afbeelding 25
Koningin Emmalaan 93, afbeelding 26
Koningin Emmalaan 93, afbeelding 27
Koningin Emmalaan 93, afbeelding 28
Koningin Emmalaan 93, afbeelding 29
Koningin Emmalaan 93, afbeelding 30
Koningin Emmalaan 93, afbeelding 31
Koningin Emmalaan 93, afbeelding 32
Koningin Emmalaan 93, afbeelding 33
Koningin Emmalaan 93, afbeelding 34
Koningin Emmalaan 93, afbeelding 35
Koningin Emmalaan 93, afbeelding 36
Koningin Emmalaan 93, afbeelding 37
Koningin Emmalaan 93, afbeelding 38
Koningin Emmalaan 93, afbeelding 39
Koningin Emmalaan 93, afbeelding 40
Koningin Emmalaan 93, afbeelding 41
Contact