1062

klanten beoordelen ons met een

9,3

!
Mail ons
0
Meer informatie?
Venster sluiten ×
Meer informatie?
Mijn favorieten
Je hebt geen favorieten.
Venster sluiten ×

Zoeken

Kim Smit
Meer informatie?
0
1
2
3
4
5
6
7
8
9
10
11
12
13
14
15
16
17
18
19
20
21
22
23
24
25
26
27
28
4209 BP SCHELLUINEN

Karekietstraat 3

verkocht
Verkocht
Lines Lines
Kim Smit
Ook je woning succesvol verkopen?

Vraag een gratis waardebepaling aan.

0183-672992 info@vanekerenkuiper.nl
Bewaren

Moderne tussenwoning met verrassend veel ruimte en comfort

Lees meer
  • Overzicht
  • Omschrijving
  • Kenmerken
  • Media
  • Plattegronden
  • Brochure

Omschrijving

Moderne tussenwoning met verrassend veel ruimte en comfort.

- Uitgebouwde woonkamer
- Zonnige achtertuin op het zuiden met sfeervolle veranda
- Tweede etage met dakkapel gerealiseerd in 2022
- Moderne keuken met gezellige ontbijtbar
- Zonnepanelen en (lucht)warmtepomp aanwezig; energielabel A+

Wauw, wat een heerlijke plek om thuis te komen! In deze jonge tussenwoning uit 2013 geniet je niet alleen van modern wooncomfort, maar ook van een rustige, groene omgeving waar je wordt begroet door het geluid van vogeltjes. De woning is tot in detail afgewerkt. Zodra je binnenstapt voel...
Lees meer

Kenmerken

Soort object Eengezinswoning
Bouwjaar 2013
Aantal kamers 3
Woonoppervlakte 113 m2
Bekijk alle kenmerken

Omschrijving

Moderne tussenwoning met verrassend veel ruimte en comfort.

- Uitgebouwde woonkamer
- Zonnige achtertuin op het zuiden met sfeervolle veranda
- Tweede etage met dakkapel gerealiseerd in 2022
- Moderne keuken met gezellige ontbijtbar
- Zonnepanelen en (lucht)warmtepomp aanwezig; energielabel A+

Wauw, wat een heerlijke plek om thuis te komen! In deze jonge tussenwoning uit 2013 geniet je niet alleen van modern wooncomfort, maar ook van een rustige, groene omgeving waar je wordt begroet door het geluid van vogeltjes. De woning is tot in detail afgewerkt. Zodra je binnenstapt voel je het meteen: dit is een warm, licht en uitnodigend thuis.

De woonkamer is aan de achterzijde uitgebouwd en dankzij de openslaande deuren vloeit de ruimte prachtig over in de tuin met veranda; een verlengstuk van je woonkamer waar je fijn en in privacy kunt genieten!

Boven is het slim ingedeeld, met als absolute verrassing de royale zolderverdieping met dakkapel, airco en veel opbergmogelijkheden. Een extra afgesloten (slaap)kamer is hier prima te realiseren!

De globale indeling:

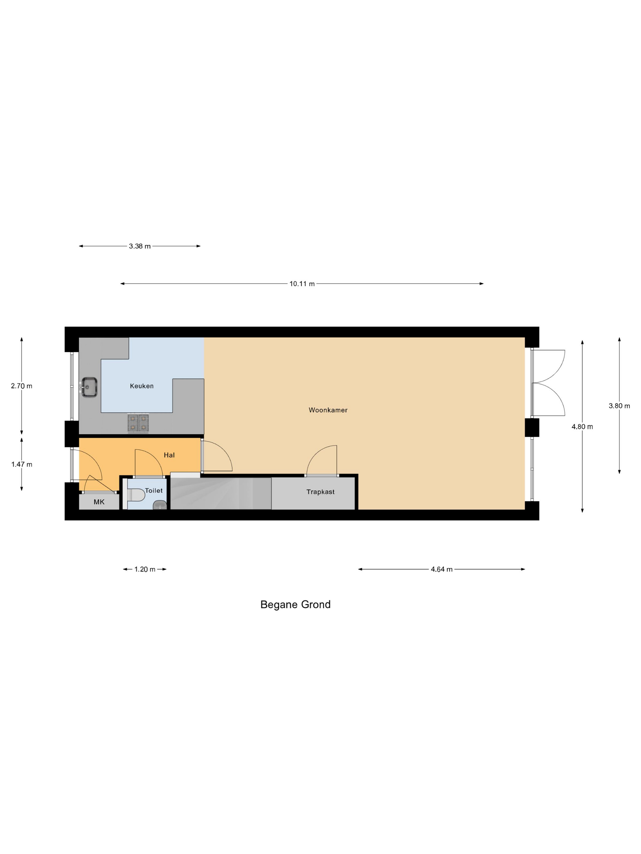
Begane grond: entree; hal met toilet, garderobe en meterkast; uitgebouwde woonkamer met trapkast, halfopen keuken en toegang tot de tuin middels openslaande deuren. De keuken is voorzien van een ontbijtbar, 4-pits inductiekookplaat, afzuigkap, spoelbak met Quooker, combi-oven, koelkast, vriezer en vaatwasser;

Eerste verdieping: overloop; separate ruimte met o.a. MV unit; toegang tot twee slaapkamers (voorheen drie) en de badkamer; masterbedroom voorzien van airco en inloopkast; moderne badkamer ingericht met een douche, toilet en wastafelmeubel, tevens bevindt zich hier de witgoedaansluiting.

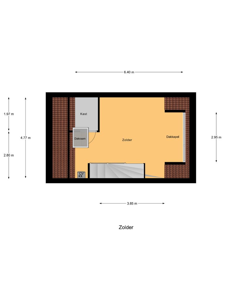
Tweede etage: open zolderruimte, vrij naar wens in te delen, met dakraam aan de voorzijde en uitgebreid met een dakkapel aan de achterzijde, tevens is hier airco. Separate bergruimte met opstelling cv. ketel en ook de omvormer van de zonnepanelen.

Buiten:
Verzorgde voortuin, met beplanting en opstapje naar de entree. Achtertuin op het zuiden ingericht met een veranda, buitenkraan, sierbestrating, beplanting, berging voor tuingereedschap in de veranda, schuur voorzien van elektra en achterom.

Goed om te weten:
- Openslaande deuren en ramen voorzien van horren
- Elektrisch bedienbaar screen boven de veranda en aan de dakkapel
- Rolluiken aanwezig op de eerste etage aan de achterzijde
- Tweede etage gerealiseerd in 2022
- Keurige staat van onderhoud en goed geïsoleerd 
- Recent is er een (lucht)warmtepomp geïnstalleerd 
- De woning is voorzien van een energielabel A+ 

Ligging:
Gelegen in het dorp Schelluinen, waar het dorpsgevoel nog echt leeft. Hier woon je in alle rust, maar mét de gemakken van de stad dichtbij. Binnen enkele minuten ben je in Gorinchem (en ook Giessenburg) met volop winkels, horeca, scholen en sportvoorzieningen. Dankzij de gunstige ligging ten opzichte van de A15 en A27 ben je zó onderweg richting Utrecht, Rotterdam of Breda. Schelluinen is omgeven door groen, wandelpaden en weilanden, waardoor je het buitenleven altijd binnen handbereik hebt. Een fijne plek voor wie houdt van rust, ruimte en toch de reuring dichtbij.

Overdracht

Status
verkocht
Aanvaarding
in overleg

Oppervlakten en inhoud

Woonoppervlakte
113 m²
Perceeloppervlakte
112 m²
Inhoud
395 m³
Bergruimte oppervlakte
5 m²

Indeling

Aantal kamers
3
Aantal slaapkamers
2

Buitenruimte

Ligging
aan rustige weg, in woonwijk
Tuin
achtertuin met een oppervlakte van 44 m² en is gelegen op het zuiden

Bouw

Soort woning
woonhuis
Soort woonhuis
eengezinswoning
Type woonhuis
tussenwoning
Aantal woonlagen
3
Bouwvorm
bestaande bouw
Bouwjaar
2013
Huidige bestemming
woonruimte
Onderhoud binnen
goed
Onderhoud buiten
goed
Voorzieningen
mechanische ventilatie, rolluiken, tv kabel, buitenzonwering, airconditioning, dakraam, zonnepanelen
Isolatie
dakisolatie, muurisolatie, vloerisolatie, dubbel glas

Energie

Energielabel
A+
Verwarming
cv ketel, vloerverwarming gedeeltelijk
Warm water
cv ketel
C.V.-ketel
gas gestookte combi-ketel uit 2013 van Intergas, eigendom

Document(en)



Plattegrond(en)

Plattegrond 1 Plattegrond 2 Plattegrond 3

Enthousiast geworden? Dan is het tijd om door te pakken!

Maak een afspraak en plan een bezichtiging.

0183-672992 info@vanekerenkuiper.nl
Doorpakken!
Venster sluiten
Karekietstraat 3, afbeelding 0
Karekietstraat 3, afbeelding 1
Karekietstraat 3, afbeelding 2
Karekietstraat 3, afbeelding 3
Karekietstraat 3, afbeelding 4
Karekietstraat 3, afbeelding 5
Karekietstraat 3, afbeelding 6
Karekietstraat 3, afbeelding 7
Karekietstraat 3, afbeelding 8
Karekietstraat 3, afbeelding 9
Karekietstraat 3, afbeelding 10
Karekietstraat 3, afbeelding 11
Karekietstraat 3, afbeelding 12
Karekietstraat 3, afbeelding 13
Karekietstraat 3, afbeelding 14
Karekietstraat 3, afbeelding 15
Karekietstraat 3, afbeelding 16
Karekietstraat 3, afbeelding 17
Karekietstraat 3, afbeelding 18
Karekietstraat 3, afbeelding 19
Karekietstraat 3, afbeelding 20
Karekietstraat 3, afbeelding 21
Karekietstraat 3, afbeelding 22
Karekietstraat 3, afbeelding 23
Karekietstraat 3, afbeelding 24
Karekietstraat 3, afbeelding 25
Karekietstraat 3, afbeelding 26
Karekietstraat 3, afbeelding 27
Karekietstraat 3, afbeelding 28
Contact