1062

klanten beoordelen ons met een

9,3

!
Mail ons
0
Meer informatie?
Venster sluiten ×
Meer informatie?
Mijn favorieten
Je hebt geen favorieten.
Venster sluiten ×

Zoeken

Jimmy
Meer informatie?
0
1
2
3
4
5
6
7
8
9
10
11
12
13
14
15
16
17
18
19
20
21
22
23
24
25
26
27
28
29
30
31
32
33
34
35
4204 SC GORINCHEM

Gruttershof 35

verkocht
Verkocht
Lines Lines
Jimmy Hammer
Ook je woning succesvol verkopen?

Vraag een gratis waardebepaling aan.

0183-672992 info@vanekerenkuiper.nl
Bewaren

Instapklaar appartement met twee balkons! 

Lees meer
  • Overzicht
  • Omschrijving
  • Kenmerken
  • Media
  • Plattegronden
  • Brochure

Omschrijving

Instapklaar appartement met twee balkons! 

- Woonkamer met een moderne open keuken
- Balkon zowel aan de voorzijde als aan de achterzijde
- Twee slaapkamers en aparte wasruimte

Ben jij op zoek naar een instapklare woning waar je zo in kunt? Dan is dit appartement in de Gildenwijk zeker iets voor jou! Je woont hier rustig, met alle voorzieningen om de hoek en parkeren kan gewoon voor de deur. Het appartement is licht, praktisch ingedeeld en voelt verrassend ruim aan.

De woonkamer ligt aan de achterzijde en is...
Lees meer

Kenmerken

Soort object Portiekflat
Bouwjaar 1960
Aantal kamers 4
Woonoppervlakte 71 m2
Bekijk alle kenmerken

Omschrijving

Instapklaar appartement met twee balkons! 

- Woonkamer met een moderne open keuken
- Balkon zowel aan de voorzijde als aan de achterzijde
- Twee slaapkamers en aparte wasruimte

Ben jij op zoek naar een instapklare woning waar je zo in kunt? Dan is dit appartement in de Gildenwijk zeker iets voor jou! Je woont hier rustig, met alle voorzieningen om de hoek en parkeren kan gewoon voor de deur. Het appartement is licht, praktisch ingedeeld en voelt verrassend ruim aan.

De woonkamer ligt aan de achterzijde en is lekker licht dankzij de grote ramen. De open keuken aan de voorzijde is voorzien van alle benodigde apparatuur. Je hebt dus alles binnen handbereik. Verder vind je de slaapkamers, waarvan de grootste is uitgerust met een rolluik, wat vooral fijn is in de zomer. De badkamer is netjes en voorzien van een douche en wastafel en het separate toilet vind je naast de hal. De aparte wasruimte is super praktisch, omdat je via hier toegang hebt tot het balkon. En dat balkon? Dat ligt heerlijk beschut en is voorzien van een zonnescherm. Ideaal voor de middagzon!

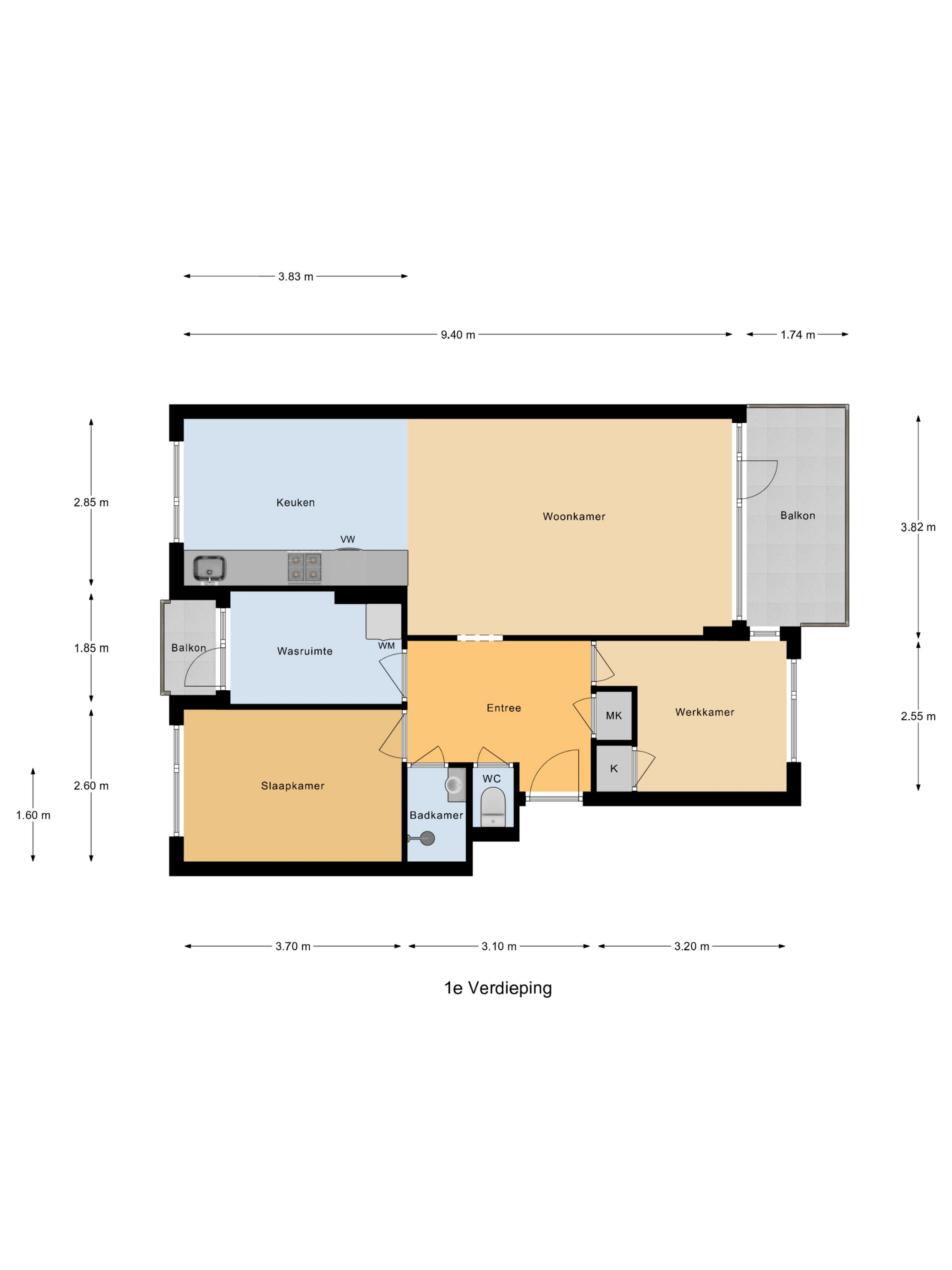
De globale indeling:

Woonverdieping; ruime hal met toegang tot de kamers, badkamer met douche en wastafel en separaat toilet; open keuken voorzien van gasfornuis, spoelbak, combimagnetron, koelkast en vriezer; woonkamer met grenzend balkon; slaapkamer met rolluik; slaapkamer tevens inzetbaar als werkkamer; wasruimte met boiler en toegang tot het tweede balkon. 

Begane grond; centrale hal: berging voorzien van elektra; intercom en postvak; trapopgang welke toegang biedt tot alle verdiepingen.

Goed om te weten:

- De servicekosten bedragen thans circa € 214,- per maand ten behoeve van de VvE. Daarnaast betaalt de huidige eigenaar een voorschot voor de blokverwarming van € 67,- per maand. 
- Verwarming via elektrische boiler, energielabel E
- De VvE draagt zorg voor de opstalverzekering, het schoonmaken van gemeenschappelijke ruimtes en de raampartijen en het grote onderhoud.
- Het appartement is voorzien van kunststof kozijnen met dubbele beglazing.
- In de directe nabijheid is er voldoende parkeergelegenheid aanwezig. 
Ligging:
Gorinchem, een stad met ruim 38.000 inwoners, combineert haar rijke historie met een modern en levendig karakter. De stad staat bekend om de goed bewaarde vestingwallen en bastions uit de 16e eeuw, het charmante oude stadhuis en de sfeervolle Grote Markt. De smalle straatjes en steegjes geven Gorinchem een unieke uitstraling. Tegelijkertijd is het een moderne stad met een uitgebreid aanbod aan winkels, scholen, sportfaciliteiten en culturele bezienswaardigheden. De binnenstad biedt een prachtige mix van levendigheid en rust, met hoogtepunten zoals de stadswallen, Buiten de Waterpoort, de rivier De Merwede en de haven. Gorinchem is strategisch gelegen aan de A15 en A27, waardoor steden zoals Utrecht, Rotterdam en Breda binnen 30-40 minuten bereikbaar zijn. Gorinchem biedt de perfecte balans tussen historie, modern comfort en centrale bereikbaarheid. Een ideale plek om te wonen!

Overdracht

Status
verkocht
Aanvaarding
in overleg

VvE checklist

Inschrijving KVK
Ja
Jaarlijkse vergadering
Ja
Periodieke bijdrage
Ja (214,00 per maand)
Reservefonds aanwezig
Nee
Onderhoudsplan
Ja
Opstalverzekering
Nee

Oppervlakten en inhoud

Woonoppervlakte
71 m²
Bergruimte oppervlakte
6 m²
Buitenruimte oppervlakte
8 m²

Indeling

Aantal kamers
4
Aantal slaapkamers
2

Bouw

Soort woning
appartement
Soort appartement
portiekflat
Aantal woonlagen
1
Woonlaag
1
Bouwvorm
bestaande bouw
Bouwjaar
1960
Open portiek
nee
Huidige bestemming
woonruimte
Onderhoud binnen
goed
Onderhoud buiten
goed
Voorzieningen
mechanische ventilatie, rolluiken, tv kabel, buitenzonwering
Isolatie
dubbel glas

Energie

Energielabel
E
Verwarming
blokverwarming
Warm water
elektrische boiler eigendom

Document(en)



Plattegrond(en)

Plattegrond 1 Plattegrond 2

Enthousiast geworden? Dan is het tijd om door te pakken!

Maak een afspraak en plan een bezichtiging.

0183-672992 info@vanekerenkuiper.nl
Doorpakken!
Venster sluiten
Gruttershof 35, afbeelding 0
Gruttershof 35, afbeelding 1
Gruttershof 35, afbeelding 2
Gruttershof 35, afbeelding 3
Gruttershof 35, afbeelding 4
Gruttershof 35, afbeelding 5
Gruttershof 35, afbeelding 6
Gruttershof 35, afbeelding 7
Gruttershof 35, afbeelding 8
Gruttershof 35, afbeelding 9
Gruttershof 35, afbeelding 10
Gruttershof 35, afbeelding 11
Gruttershof 35, afbeelding 12
Gruttershof 35, afbeelding 13
Gruttershof 35, afbeelding 14
Gruttershof 35, afbeelding 15
Gruttershof 35, afbeelding 16
Gruttershof 35, afbeelding 17
Gruttershof 35, afbeelding 18
Gruttershof 35, afbeelding 19
Gruttershof 35, afbeelding 20
Gruttershof 35, afbeelding 21
Gruttershof 35, afbeelding 22
Gruttershof 35, afbeelding 23
Gruttershof 35, afbeelding 24
Gruttershof 35, afbeelding 25
Gruttershof 35, afbeelding 26
Gruttershof 35, afbeelding 27
Gruttershof 35, afbeelding 28
Gruttershof 35, afbeelding 29
Gruttershof 35, afbeelding 30
Gruttershof 35, afbeelding 31
Gruttershof 35, afbeelding 32
Gruttershof 35, afbeelding 33
Gruttershof 35, afbeelding 34
Gruttershof 35, afbeelding 35
Contact