1062

klanten beoordelen ons met een

9,3

!
Mail ons
0
Meer informatie?
Venster sluiten ×
Meer informatie?
Mijn favorieten
Je hebt geen favorieten.
Venster sluiten ×

Zoeken

Madelon Sommer
Meer informatie?
0
1
2
3
4
5
6
7
8
9
10
11
12
13
14
15
16
17
18
19
20
21
22
23
24
25
26
27
28
29
30
31
32
33
34
35
36
37
38
39
40
41
42
43
44
45
46
47
48
49
50
51
52
53
54
55
56
57
58
59
60
61
62
63
64
65
66
67
68
69
70
71
72
73
74
75
76
4161 CB HEUKELUM

Gasthuisstraat 51

€ 1.100.000,- k.k.
Nieuw
Lines Lines
Madelon Sommer
Binnenkijken in jouw droomwoning?

Madelon helpt je graag met al jouw vragen over de woning.

0345-632100 info@vanekerenkuiper.nl
Bewaren

Karaktervol geheel met volop mogelijkheden!

Lees meer

Omschrijving

Gasthuisstraat 51 en 53 + M. Visserstraat 1 in Heukelum

Karaktervol geheel met volop mogelijkheden!

- Ideaal voor dubbele bewoning of werken aan huis
- Eigen oprit en gezamenlijke tuin
- Drie adressen, één geheel

Midden in de oude stadskern van Heukelum ligt dit karaktervolle en veelzijdige geheel: een bijzondere locatie waar wonen en werken samenkomen. Vanaf het moment van binnenkomst is duidelijk dat dit geen standaard woning betreft, maar een pand met historie, sfeer en een warme, authentieke uitstraling. De zorgvuldig gekozen materialen voelen degelijk en origineel aan...
Lees meer

Kenmerken

Soort object Herenhuis
Bouwjaar 1777
Aantal kamers 8
Woonoppervlakte 385 m2
Bekijk alle kenmerken

Omschrijving

Gasthuisstraat 51 en 53 + M. Visserstraat 1 in Heukelum

Karaktervol geheel met volop mogelijkheden!

- Ideaal voor dubbele bewoning of werken aan huis
- Eigen oprit en gezamenlijke tuin
- Drie adressen, één geheel

Midden in de oude stadskern van Heukelum ligt dit karaktervolle en veelzijdige geheel: een bijzondere locatie waar wonen en werken samenkomen. Vanaf het moment van binnenkomst is duidelijk dat dit geen standaard woning betreft, maar een pand met historie, sfeer en een warme, authentieke uitstraling. De zorgvuldig gekozen materialen voelen degelijk en origineel aan en sluiten perfect aan bij het karakter van het gebouw.

Het object bestaat uit drie adressen die gezamenlijk worden verkocht en één multifunctioneel geheel vormen. Dit biedt uiteenlopende gebruiksmogelijkheden, zoals dubbele bewoning, mantelzorg, verhuur, werken aan huis of een combinatie daarvan.
Het herenhuis (Gasthuisstraat 51) en het hoekhuis (Gasthuisstraat 53) zijn intern met elkaar verbonden, maar kunnen ook elk zelfstandig worden gebruikt.

Gasthuisstraat 51–53 is in de periode 2000–2002 volledig gerenoveerd, met veel aandacht voor het behoud en versterken van karakteristieke details. Zo zijn onder andere getrommeld marmer en houten vloeren toegepast, zijn er balkenplafonds met een hoogte van ruim drie meter, zichtbare spantconstructies en monumentale kleurstellingen in groen, okergeel en ossenrood.

De oorspronkelijke sfeer is binnenshuis zorgvuldig behouden, onder meer door de houtkachel in de woonkamer en een slaapkamer met authentieke bedstee. Tegelijkertijd is het wooncomfort van nu ruimschoots aanwezig, met voorzieningen als airconditioning (met verwarmingsfunctie), vloerverwarming in de keuken en meerdere badkamers.

Daarnaast beschikt het geheel over een werkplaats, een royaal perceel en een vrijstaande schuur, wat de gebruiksmogelijkheden verder vergroot. Gelegen in een rustige straat in de historische kern, bevinden dagelijkse voorzieningen zich op loopafstand.

Een uniek object met uitzonderlijk veel potentie, ideaal voor kopers die ruim, flexibel en toekomstgericht willen wonen en werken.

De globale indeling: 

Gasthuisstraat 51 

Nummer 51 is het hart van het geheel. Je komt binnen in een ruime hal met trapopgang, trapkast, voorraadkast en een toilet met fonteintje. Vanuit hier loop je door naar de woonkamer aan de voorzijde, waar de houtkachel zorgt voor warmte en gezelligheid. De keuken is praktisch ingericht met gasfornuis, afzuigkap, spoelbak en koelkast. Dankzij de airco, die ook kan verwarmen,  is het hier het hele jaar comfortabel. Openslaande deuren geven een fijne verbinding met buiten. Aansluitend vind je de bijkeuken met witgoedaansluitingen, wasbak en achterdeur. De begane grond is voorzien van vloerverwarming op de woonkamer na.

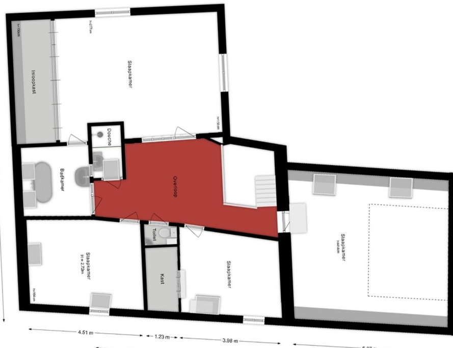
Op de eerste verdieping kom je uit op een royale overloop met vide en toegang tot de zolder van nummer 53. Op deze verdieping zijn drie slaapkamers. Er zijn maar liefst twee badkamers: één met wastafel en inloopdouche en één met ligbad en wastafel. Vanuit deze badkamer bereik je de master bedroom met inloopkast en airco. Daarnaast zijn er nog een separaat toilet met fonteintje. De vliering/bergzolder biedt aanvullende bergruimte.

Gasthuisstraat 53

Nummer 53 heeft een eigen entree. De indeling bestaat uit een hal met meterkast, toilet met fonteintje en trapopgang. Links bevindt zich een multifunctionele kamer (tevens bereikbaar via nummer 51). De woonkamer met prachtig hoge plafonds ligt aan de rechterzijde en aansluitend is er een gesloten keuken met witgoedaansluitingen. Op de verdieping vind je een overloop, een badkamer met wastafelmeubel en douchecabine en een slaapkamer met bergruimte achter de knieschotten. 

M. Visserstraat 1

M. Visserstraat 1 beschikt over een eigen entree met toegang tot een ruime werkplaats met zolderverdieping. Ideaal voor hobby, opslag, onderneming aan huis of is in te richten als volledig woonhuis. Vanuit dit huisnummer is ook de gezamenlijke achtertuin te bereiken.

Buiten:
Het perceel beschikt over een circa 26 meter lange oprit vanaf de Torenstraat met parkeergelegenheid voor vier à vijf auto’s. Halverwege de oprit bevindt zich een vrijstaande garage (ca. 5,00 x 7,95 m), uitgevoerd in traditioneel metselwerk met houten gevelbekleding en een zadeldak met rode Oud-Hollandse pannen. De garage is toegankelijk via openslaande deuren aan de voorzijde en een separate loopdeur aan de achterzijde en beschikt over elektra en riolering. De begane grond heeft een hoogte van circa 2,55 meter en de verdieping is bereikbaar via een afsluitbare trap.

De besloten tuin is gesitueerd op het zuidoosten en biedt veel privacy. De tuin is ingericht met een grindoprit, siertuin en een betegeld, deels overdekt terras, waar al vroeg in het voorjaar van de zon kan worden genoten.

Goed om te weten: 
- Het volledige perceel van 677m² binnen het aangegeven kader wordt als één geheel verkocht.
- Gasthuisstraat 53 wordt momenteel verhuurd, maar de huidige huurovereenkomst eindigt binnenkort
- Werkplaats en schuur voorzien van elektra en water 
- Oprit aan achterzijde met parkeergelegenheid voor drie auto’s
- Oplevering mogelijk vanaf mei 2026

De omgeving:
Heukelum, een charmant en historisch stadje aan de zuidelijke oever van de rivier de Linge, biedt de perfecte balans tussen rustig wonen en praktische voorzieningen. Het stadje telt 2.280 inwoners, waarvan 600 in de sfeervolle oude kern. Heukelum beschikt over een grote supermarkt met een ruim assortiment en heeft een actief verenigingsleven op muzikaal en sportief gebied. Voor gezinnen zijn er twee basisscholen en een kinderdagverblijf met naschoolse opvang.
Leerdam ligt op slechts tien minuten fietsen en biedt een uitgebreid aanbod aan winkels, horeca en middelbare scholen. De gunstige ligging nabij de A15, A27 en A2 zorgt ervoor dat steden zoals Utrecht en Den Bosch binnen 30 minuten te bereiken zijn, terwijl Rotterdam, Arnhem en Eindhoven slechts 45 minuten rijden zijn. In Heukelum geniet je van landelijke rust, een historische ambiance en een centrale ligging met uitstekende voorzieningen!

Overdracht

Vraagprijs
€ 1.100.000,- k.k.
Status
beschikbaar
Aanvaarding
in overleg

Oppervlakten en inhoud

Woonoppervlakte
385 m²
Perceeloppervlakte
677 m²
Inhoud
1.623 m³
Inpandige ruimte oppervlakte
59 m²
Bergruimte oppervlakte
60 m²

Indeling

Aantal kamers
8
Aantal slaapkamers
5

Buitenruimte

Ligging
in woonwijk
Tuin
achtertuin met een oppervlakte van 525 m² en is gelegen op het zuiden

Bouw

Soort woning
woonhuis
Soort woonhuis
herenhuis
Type woonhuis
halfvrijstaande woning
Aantal woonlagen
2
Bouwvorm
bestaande bouw
Bouwjaar
1777
Huidige bestemming
woonruimte
Onderhoud binnen
redelijk_tot_goed
Onderhoud buiten
goed
Voorzieningen
mechanische ventilatie, rolluiken, tv kabel, buitenzonwering, airconditioning, dakraam, zonnepanelen, natuurlijke ventilatie
Isolatie
dakisolatie, muurisolatie, grotendeels dubbelglas

Energie

Energielabel
C
Verwarming
cv ketel, houtkachel
Warm water
elektrische boiler eigendom
C.V.-ketel
gas gestookte combi-ketel uit 2001 van Nefit Ecomline Classic, eigendom

Document(en)

Plattegrond PDF


Plattegrond(en)

Plattegrond 1 Plattegrond 2 Plattegrond 3 Plattegrond 4

Enthousiast geworden? Dan is het tijd om door te pakken!

Maak een afspraak en plan een bezichtiging.

0345-632100 info@vanekerenkuiper.nl
Doorpakken!
Venster sluiten
Gasthuisstraat 51, afbeelding 0
Gasthuisstraat 51, afbeelding 1
Gasthuisstraat 51, afbeelding 2
Gasthuisstraat 51, afbeelding 3
Gasthuisstraat 51, afbeelding 4
Gasthuisstraat 51, afbeelding 5
Gasthuisstraat 51, afbeelding 6
Gasthuisstraat 51, afbeelding 7
Gasthuisstraat 51, afbeelding 8
Gasthuisstraat 51, afbeelding 9
Gasthuisstraat 51, afbeelding 10
Gasthuisstraat 51, afbeelding 11
Gasthuisstraat 51, afbeelding 12
Gasthuisstraat 51, afbeelding 13
Gasthuisstraat 51, afbeelding 14
Gasthuisstraat 51, afbeelding 15
Gasthuisstraat 51, afbeelding 16
Gasthuisstraat 51, afbeelding 17
Gasthuisstraat 51, afbeelding 18
Gasthuisstraat 51, afbeelding 19
Gasthuisstraat 51, afbeelding 20
Gasthuisstraat 51, afbeelding 21
Gasthuisstraat 51, afbeelding 22
Gasthuisstraat 51, afbeelding 23
Gasthuisstraat 51, afbeelding 24
Gasthuisstraat 51, afbeelding 25
Gasthuisstraat 51, afbeelding 26
Gasthuisstraat 51, afbeelding 27
Gasthuisstraat 51, afbeelding 28
Gasthuisstraat 51, afbeelding 29
Gasthuisstraat 51, afbeelding 30
Gasthuisstraat 51, afbeelding 31
Gasthuisstraat 51, afbeelding 32
Gasthuisstraat 51, afbeelding 33
Gasthuisstraat 51, afbeelding 34
Gasthuisstraat 51, afbeelding 35
Gasthuisstraat 51, afbeelding 36
Gasthuisstraat 51, afbeelding 37
Gasthuisstraat 51, afbeelding 38
Gasthuisstraat 51, afbeelding 39
Gasthuisstraat 51, afbeelding 40
Gasthuisstraat 51, afbeelding 41
Gasthuisstraat 51, afbeelding 42
Gasthuisstraat 51, afbeelding 43
Gasthuisstraat 51, afbeelding 44
Gasthuisstraat 51, afbeelding 45
Gasthuisstraat 51, afbeelding 46
Gasthuisstraat 51, afbeelding 47
Gasthuisstraat 51, afbeelding 48
Gasthuisstraat 51, afbeelding 49
Gasthuisstraat 51, afbeelding 50
Gasthuisstraat 51, afbeelding 51
Gasthuisstraat 51, afbeelding 52
Gasthuisstraat 51, afbeelding 53
Gasthuisstraat 51, afbeelding 54
Gasthuisstraat 51, afbeelding 55
Gasthuisstraat 51, afbeelding 56
Gasthuisstraat 51, afbeelding 57
Gasthuisstraat 51, afbeelding 58
Gasthuisstraat 51, afbeelding 59
Gasthuisstraat 51, afbeelding 60
Gasthuisstraat 51, afbeelding 61
Gasthuisstraat 51, afbeelding 62
Gasthuisstraat 51, afbeelding 63
Gasthuisstraat 51, afbeelding 64
Gasthuisstraat 51, afbeelding 65
Gasthuisstraat 51, afbeelding 66
Gasthuisstraat 51, afbeelding 67
Gasthuisstraat 51, afbeelding 68
Gasthuisstraat 51, afbeelding 69
Gasthuisstraat 51, afbeelding 70
Gasthuisstraat 51, afbeelding 71
Gasthuisstraat 51, afbeelding 72
Gasthuisstraat 51, afbeelding 73
Gasthuisstraat 51, afbeelding 74
Gasthuisstraat 51, afbeelding 75
Gasthuisstraat 51, afbeelding 76
Contact