1062

klanten beoordelen ons met een

9,3

!
Mail ons
0
Meer informatie?
Venster sluiten ×
Meer informatie?
Mijn favorieten
Je hebt geen favorieten.
Venster sluiten ×

Zoeken

Kim Smit
Meer informatie?
0
1
2
3
4
5
6
7
8
9
10
11
12
13
14
15
16
17
18
19
20
21
22
23
24
25
26
27
28
4142 SC LEERDAM

De Sorteur 8

verkocht
Verkocht
Lines Lines
Kim Smit
Ook je woning succesvol verkopen?

Vraag een gratis waardebepaling aan.

0345-632100 info@vanekerenkuiper.nl
Bewaren

Heerlijk gelijkvloers wonen in dit moderne en luxe 3-kamerappartement.

Lees meer
  • Overzicht
  • Omschrijving
  • Kenmerken
  • Media
  • Plattegronden
  • Brochure

Omschrijving

Heerlijk gelijkvloers wonen in dit moderne en luxe 3-kamerappartement.

- Volledig gasloos, vloerverwarming en -koeling
- Energielabel A+++
- Ruim balkon met vrij uitzicht
- Eigen parkeerplaats en berging in de parkeerkelder
- Gelegen in de nieuwe wijk Broekgraaf met voorzieningen op steenworp afstand

Stap binnen in dit luxe appartement en laat je verrassen door het comfort, de rust en de moderne afwerking. Alles klopt hier. De lift brengt je moeiteloos naar de eerste etage en eenmaal binnen ervaar je direct de warme, huiselijke sfeer. Grote raampartijen zorgen voor volop...
Lees meer

Kenmerken

Soort object Portiekflat
Bouwjaar 2020
Aantal kamers 3
Woonoppervlakte 90 m2
Bekijk alle kenmerken

Omschrijving

Heerlijk gelijkvloers wonen in dit moderne en luxe 3-kamerappartement.

- Volledig gasloos, vloerverwarming en -koeling
- Energielabel A+++
- Ruim balkon met vrij uitzicht
- Eigen parkeerplaats en berging in de parkeerkelder
- Gelegen in de nieuwe wijk Broekgraaf met voorzieningen op steenworp afstand

Stap binnen in dit luxe appartement en laat je verrassen door het comfort, de rust en de moderne afwerking. Alles klopt hier. De lift brengt je moeiteloos naar de eerste etage en eenmaal binnen ervaar je direct de warme, huiselijke sfeer. Grote raampartijen zorgen voor volop lichtinval en verbinden de stijlvolle woonkamer met het ruime balkon, een heerlijke plek om te zitten met een goed boek of een kopje koffie. Het geheel is gasloos, instapklaar en biedt daardoor veel comfort. In de afgesloten parkeerkelder is een privéplek aanwezig als ook een eigen berging. Met de nodige voorzieningen letterlijk om de hoek, is het ideaal gesitueerd te midden van een levendige woonwijk.

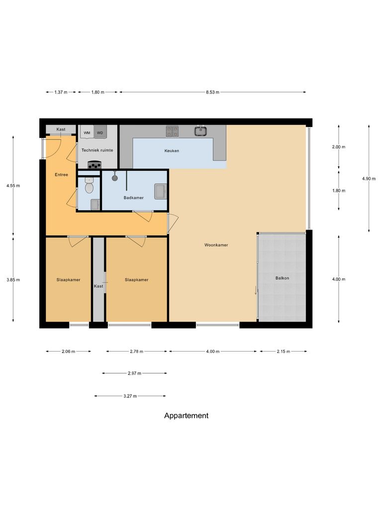
De globale indeling:

Begane grond: afgesloten entree met videosysteem en brievenbussen; centrale hal met trappenhuis en liftinstallatie.

Woonetage: entree; praktische hal met garderobe; separaat toilet met fonteintje; technische ruimte met opstelling van de warmtepomp, elektrische warmwaterboiler, witgoedaansluitingen, omvormer van de zonnepanelen en berging; twee slaapkamers waarvan de grootste slaapkamer is voorzien van een vaste kastenwand; ruime badkamer met inloopdouche en wastafelmeubel; ruime woonkamer met schuifpui naar het overdekte balkon; open keuken in hoekopstelling voorzien van o.a. een inductiekookplaat, afzuigkap, koelkast, vriezer, magnetron, oven, spoelbak en vaatwasser.

Parkeergarage: de parkeerplaats is bereikbaar via een elektrische bedienbare deur aan de voorzijde van het complex, tevens via de liftinstallatie in het complex. Hier bevindt zich ook de berging.

Goed om te weten:
- De woning bevat een warmtepomp, een WTW-systeem en vijf zonnepanelen
- Volledig voorzien van vloerverwarming en -koeling
- Circa 90 m² woonoppervlakte
- Lift aanwezig in het complex
- De servicekosten (bijdrage VvE) bedragen thans € 167,- per maand 
- Nabij winkels, huisarts en andere voorzieningen

Omgeving:
Leerdam, gelegen aan de Linge in de gemeente Vijfheerenlanden met ongeveer 21.000 inwoners. De stad staat bekend als de Glasstad, met een rijke historie en het Nationaal Glasmuseum als belangrijk cultureel middelpunt. Naast winkels, supermarkten en gezellige horecagelegenheden beschikt Leerdam over meerdere basisscholen, een middelbare school en uitgebreide sportfaciliteiten, zoals een zwembad, sportscholen en sportverenigingen. Leerdam is uitstekend bereikbaar via de A2 en A15 en heeft een treinstation met verbindingen naar Utrecht en Geldermalsen.

Overdracht

Status
verkocht
Aanvaarding
in overleg

VvE checklist

Inschrijving KVK
Ja
Jaarlijkse vergadering
Ja
Periodieke bijdrage
Ja (167,00 per maand)
Reservefonds aanwezig
Ja
Onderhoudsplan
Ja
Opstalverzekering
Ja

Oppervlakten en inhoud

Woonoppervlakte
90 m²
Bergruimte oppervlakte
5 m²
Buitenruimte oppervlakte
9 m²

Indeling

Aantal kamers
3
Aantal slaapkamers
2

Buitenruimte

Ligging
aan rustige weg, in woonwijk, vrij uitzicht

Bouw

Soort woning
appartement
Soort appartement
portiekflat
Aantal woonlagen
1
Woonlaag
1
Bouwvorm
bestaande bouw
Bouwjaar
2020
Open portiek
nee
Huidige bestemming
woonruimte
Onderhoud binnen
goed
Onderhoud buiten
goed
Voorzieningen
mechanische ventilatie, buitenzonwering, lift, schuifpui, glasvezel kabel, zonnepanelen
Isolatie
volledig geisoleerd, hr glas

Energie

Energielabel
A+++
Verwarming
vloerverwarming geheel, warmte terugwininstallatie
Warm water
elektrische boiler eigendom

Document(en)



Plattegrond(en)

Plattegrond 1

Enthousiast geworden? Dan is het tijd om door te pakken!

Maak een afspraak en plan een bezichtiging.

0345-632100 info@vanekerenkuiper.nl
Doorpakken!
Venster sluiten
De Sorteur 8, afbeelding 0
De Sorteur 8, afbeelding 1
De Sorteur 8, afbeelding 2
De Sorteur 8, afbeelding 3
De Sorteur 8, afbeelding 4
De Sorteur 8, afbeelding 5
De Sorteur 8, afbeelding 6
De Sorteur 8, afbeelding 7
De Sorteur 8, afbeelding 8
De Sorteur 8, afbeelding 9
De Sorteur 8, afbeelding 10
De Sorteur 8, afbeelding 11
De Sorteur 8, afbeelding 12
De Sorteur 8, afbeelding 13
De Sorteur 8, afbeelding 14
De Sorteur 8, afbeelding 15
De Sorteur 8, afbeelding 16
De Sorteur 8, afbeelding 17
De Sorteur 8, afbeelding 18
De Sorteur 8, afbeelding 19
De Sorteur 8, afbeelding 20
De Sorteur 8, afbeelding 21
De Sorteur 8, afbeelding 22
De Sorteur 8, afbeelding 23
De Sorteur 8, afbeelding 24
De Sorteur 8, afbeelding 25
De Sorteur 8, afbeelding 26
De Sorteur 8, afbeelding 27
De Sorteur 8, afbeelding 28
Contact