1062

klanten beoordelen ons met een

9,3

!
Mail ons
0
Meer informatie?
Venster sluiten ×
Meer informatie?
Mijn favorieten
Je hebt geen favorieten.
Venster sluiten ×

Zoeken

Jimmy
Meer informatie?
0
1
2
3
4
5
6
7
8
9
10
11
12
13
14
15
16
17
18
19
20
21
22
23
24
25
26
27
28
29
30
31
32
33
34
35
4241 DH ARKEL

Bessendreef 44

€ 400.000,- k.k.
Verkocht ovb
Lines Lines
Jimmy Hammer
Binnenkijken in jouw droomwoning?

Jimmy helpt je graag met al jouw vragen over de woning.

0183-672992 info@vanekerenkuiper.nl
Bewaren

Lekker ruim wonen (124 m²), energielabel A en een zonnige tuin op het zuiden!

Lees meer

Omschrijving

Lekker ruim wonen (124 m²), energielabel A en een zonnige tuin op het zuiden!

- Extra veel woongenot met 124 m² aan woonoppervlakte en 4 riante slaapkamers
- Energielabel A, 7 zonnepanelen én een nieuwe ketel (2025)
- Fijne tuin op het zuiden: zonnen en genieten kan hier de hele dag

Aan de Bessendreef in Arkel staat deze fijne, verrassend ruime tussenwoning. Binnen stap je een lichte woonkamer in, met een grote raampartij aan de voorzijde en een doorloop naar de halfopen keuken. De keuken heeft een praktische opstelling, waardoor je tijdens...
Lees meer

Kenmerken

Soort object Eengezinswoning
Bouwjaar 1982
Aantal kamers 5
Woonoppervlakte 124 m2
Bekijk alle kenmerken

Omschrijving

Lekker ruim wonen (124 m²), energielabel A en een zonnige tuin op het zuiden!

- Extra veel woongenot met 124 m² aan woonoppervlakte en 4 riante slaapkamers
- Energielabel A, 7 zonnepanelen én een nieuwe ketel (2025)
- Fijne tuin op het zuiden: zonnen en genieten kan hier de hele dag

Aan de Bessendreef in Arkel staat deze fijne, verrassend ruime tussenwoning. Binnen stap je een lichte woonkamer in, met een grote raampartij aan de voorzijde en een doorloop naar de halfopen keuken. De keuken heeft een praktische opstelling, waardoor je tijdens het koken in contact blijft met het gezin of je gasten. De tweede verdieping is echt een volwaardige verdieping door de dakkapel aan de voorzijde. De achtertuin? Die ligt lekker op het zuiden, dus zonliefhebbers zitten hier gebakken. Achterin de tuin staat een houten berging, ideaal voor fietsen en tuinspullen, en via de achterom ben je zo weer op pad.

Naast een fijne woongenot ligt de woning ook nog op een fijne locatie. Gelegen aan een rustige straat, vindt je hier rust én gemak dicht bij huis. Voor gezinnen ideaal: de basisschool ligt op loopafstand. Sport- en recreatiemogelijkheden zijn direct om de hoek, met een zwembad en een actieve tennisvereniging in de buurt. Daarnaast zijn diverse winkels ook op loopafstand gelegen. Een perfecte plek om te wonen, te ontspannen én te genieten van een fijne buurt.

Globale indeling:

Begane grond: entree; hal met meterkast en toegang tot de woonkamer; woonkamer met veel lichtinval; halfopen keuken aan de achterzijde met toegang tot de tuin; tussenhal met trapopgang; zwevend toilet met fonteintje.

Eerste verdieping: overloop; 3 ruime slaapkamers; badkamer met ligbad, douche, bidet en wastafel.

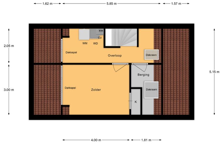
Tweede verdieping: overloop met cv-opstelling en witgoedaansluitingen; slaapkamer vergroot middels een dakkapel; bergruimte. 

Buiten:
- Fijne voortuin met verschillende beplanting en struiken
- Zonnige achtertuin met sierbestrating, diverse beplanting en een berging

Goed om te weten:
- 7 zonnepanelen (2020) en energielabel A
- In 2025 is de CV-installatie vernieuwd. 
- Gedeeltelijk voorzien van vloerverwarming op de begane grond
- Gelegen op een toplocatie nabij school, zwembad en sportverenigingen;

Ligging:
Arkel is een sfeervol dorp in de gemeente Molenlanden met ongeveer 3.500 inwoners. Het compacte winkelcentrum biedt o.a. een supermarkt, bakker en drogist. Daarnaast zijn er basisscholen, een medisch centrum en diverse sportfaciliteiten zoals voetbal-, tennis- en korfbalverenigingen. Ook heeft Arkel een jachthaven voor waterliefhebbers. Met een eigen treinstation en goede busverbindingen sta je zo in Gorinchem of verder. Dankzij de nabijgelegen uitvalswegen A15 en A27 zijn steden als Utrecht, Breda en Rotterdam binnen 30 minuten te bereiken.

Overdracht

Vraagprijs
€ 400.000,- k.k.
Status
verkocht onder voorbehoud
Aanvaarding
in overleg

Oppervlakten en inhoud

Woonoppervlakte
124 m²
Perceeloppervlakte
130 m²
Inhoud
434 m³
Bergruimte oppervlakte
7 m²

Indeling

Aantal kamers
5
Aantal slaapkamers
4

Buitenruimte

Ligging
in woonwijk
Tuin
achtertuin met een oppervlakte van 63 m² en is gelegen op het zuidwesten

Bouw

Soort woning
woonhuis
Soort woonhuis
eengezinswoning
Type woonhuis
tussenwoning
Aantal woonlagen
3
Bouwvorm
bestaande bouw
Bouwjaar
1982
Huidige bestemming
woonruimte
Onderhoud binnen
goed
Onderhoud buiten
goed
Voorzieningen
mechanische ventilatie, tv kabel, buitenzonwering, dakraam, zonnepanelen
Isolatie
dakisolatie, vloerisolatie, dubbel glas

Energie

Energielabel
A
Verwarming
cv ketel, vloerverwarming gedeeltelijk
Warm water
cv ketel
C.V.-ketel
gas gestookte combi-ketel uit 2025 van Intergas Kombi Kompakt, eigendom

Document(en)



Plattegrond(en)

Plattegrond 1 Plattegrond 2 Plattegrond 3 Plattegrond 4

Enthousiast geworden? Dan is het tijd om door te pakken!

Maak een afspraak en plan een bezichtiging.

0183-672992 info@vanekerenkuiper.nl
Doorpakken!
Venster sluiten
Bessendreef 44, afbeelding 0
Bessendreef 44, afbeelding 1
Bessendreef 44, afbeelding 2
Bessendreef 44, afbeelding 3
Bessendreef 44, afbeelding 4
Bessendreef 44, afbeelding 5
Bessendreef 44, afbeelding 6
Bessendreef 44, afbeelding 7
Bessendreef 44, afbeelding 8
Bessendreef 44, afbeelding 9
Bessendreef 44, afbeelding 10
Bessendreef 44, afbeelding 11
Bessendreef 44, afbeelding 12
Bessendreef 44, afbeelding 13
Bessendreef 44, afbeelding 14
Bessendreef 44, afbeelding 15
Bessendreef 44, afbeelding 16
Bessendreef 44, afbeelding 17
Bessendreef 44, afbeelding 18
Bessendreef 44, afbeelding 19
Bessendreef 44, afbeelding 20
Bessendreef 44, afbeelding 21
Bessendreef 44, afbeelding 22
Bessendreef 44, afbeelding 23
Bessendreef 44, afbeelding 24
Bessendreef 44, afbeelding 25
Bessendreef 44, afbeelding 26
Bessendreef 44, afbeelding 27
Bessendreef 44, afbeelding 28
Bessendreef 44, afbeelding 29
Bessendreef 44, afbeelding 30
Bessendreef 44, afbeelding 31
Bessendreef 44, afbeelding 32
Bessendreef 44, afbeelding 33
Bessendreef 44, afbeelding 34
Bessendreef 44, afbeelding 35
Contact