Omschrijving
                                                Sfeervol wonen in een karakteristieke jaren '30 woning met diepe tuin
- Parkeren op eigen terrein en genieten van een groene tuin van maar liefst 40 meter diep
- Een woonoppervlakte van circa. 110 m² met een lichte woonkamer, open haard en sfeervolle details
- Ruime master bedroom met Frans balkon en twee dakramen
Een huis met charme, ruimte én potentie, dat vind je aan de Beatrixlaan 34 in Dalem. Deze karakteristieke jaren '30 woning is doordrenkt van sfeer: denk aan paneeldeuren, een houten vloer, klassieke trapspijlen en gezellige niveauverschillen. De woonkamer...
                                                
                                                
Lees
                                                    meer
                                             
                                         
                                                                                    
                                                Kenmerken
                                                
                                                    
                                                        
                                                        Soort object
                                                        
                                                                                                                    Eengezinswoning
                                                                                                            
                                                    
                                                                                                            
                                                            
                                                            Bouwjaar
                                                            
                                                                                                                        1939
                                                                                                                
                                                        
                                                        
                                                            
                                                            Aantal kamers
                                                            
                                                                                                                        4
                                                                                                                
                                                        
                                                                                                        
                                                        
                                                        Woonoppervlakte
                                                        
                                                                                                                    110 m2
                                                                                                            
                                                    
                                                 
                                                Bekijk alle
                                                    kenmerken
                                             
                                                                             
                                 
                                
                                    
Omschrijving
                                    Sfeervol wonen in een karakteristieke jaren '30 woning met diepe tuin
- Parkeren op eigen terrein en genieten van een groene tuin van maar liefst 40 meter diep
- Een woonoppervlakte van circa. 110 m² met een lichte woonkamer, open haard en sfeervolle details
- Ruime master bedroom met Frans balkon en twee dakramen
Een huis met charme, ruimte én potentie, dat vind je aan de Beatrixlaan 34 in Dalem. Deze karakteristieke jaren '30 woning is doordrenkt van sfeer: denk aan paneeldeuren, een houten vloer, klassieke trapspijlen en gezellige niveauverschillen. De woonkamer is heerlijk licht, met een fijne open haard als warm middelpunt. De open keuken grenst direct aan de diepe achtertuin van maar liefst 40 meter, een groene oase waar je volop kunt ontspannen, tuinieren of genieten van het zonnetje.
Binnen is het goed toeven: drie slaapkamers, waaronder een ruime master bedroom met openslaande deuren naar een Frans balkon, zorgen voor volop leefruimte. De badkamer is in 2023 deels vernieuwd en is praktisch ingedeeld. Voeg daar het gemak van een eigen oprit, extra ruime garage, schuur én overkapping aan toe en je hebt een woning die van alle markten thuis is.
Globale indeling: 
Begane grond: entree; hal met toegang tot woonkamer en toilet voorzien van fonteintje; lichte woonkamer met open haard, meterkast, wasruimte, hal met toegang tot de kelder en toegang tot de eerste verdieping achter gesloten deur; open keuken voorzien van 5-pits gas kookplaat, combi-oven, dubbele spoelbak, vaatwasser, koelkast en openslaande deuren naar achtertuin.
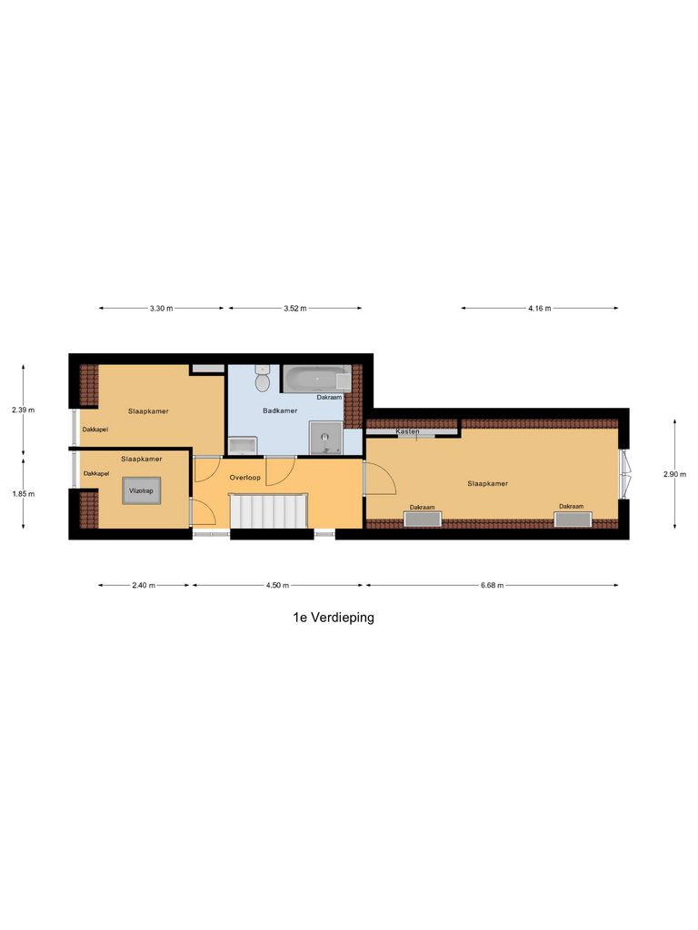
Eerste verdieping: overloop met toegang tot 3 slaapkamers en badkamer; master bedroom aan de achterzijde voorzien van vaste kast, twee dakramen en Frans balkon met openslaande deuren; tweede slaapkamer aan de voorzijde; derde slaapkamer tevens aan de voorzijde met toegang tot de bergzolder middels vlizotrap; badkamer voorzien van douche, ligbad, wastafelmeubel en toilet.
Buiten:
- Verzorgde voortuin met oprit
- Pad naar achtertuin afgesloten door middel van gietijzeren hek
- Verschillende terrassen in de achtertuin om vollop van de zon of juist schaduw te genieten
- Gazon en verschillende bomen, struiken en beplanting
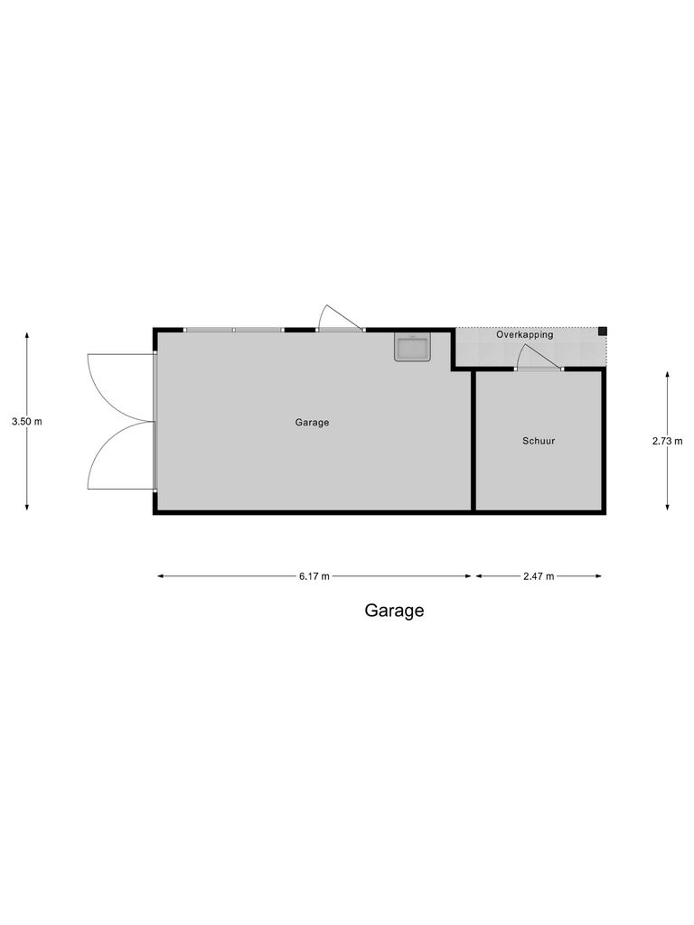
- Ruime garage met openslaande deuren, spoelbak en elektra, toegankelijk vanuit de oprit
- Schuur met elektra, tuinhuisje én overkapping van circa 7 m²
Goed om te weten:
- Bouwjaar ca. 1934
- Keukenopstelling uit 2001
- Badkamer gedeeltelijk vernieuwd in 2023
- CV-installatie vervangen in 2025
- Garage met openslaande deuren, spoelbak en elektra
- Tuinschuur geplaatst in 2013
- Aanbouw achterzijde woning gerealiseerd in 2001
- Tuinhuisje uit 2000 en garage/schuur uit 1998
Over Dalem
Dalem, een sfeervol dorp met ongeveer 2.000 inwoners, ligt aan de rand van de historische vestingstad Gorinchem. Als een wijk van Gorinchem profiteert Dalem van alle stedelijke voorzieningen, zoals scholen, winkels en sportverenigingen, terwijl het zijn rustige, dorpse karakter behoudt. Gorinchem zelf ademt geschiedenis, met bezienswaardigheden zoals de 16e-eeuwse vestingwal, het oude stadhuis en sfeervolle straatjes.
De ligging aan de Merwede en nabij natuurgebieden zoals de Linge, de Biesbosch en de Alblasserwaard zorgt voor een landelijke sfeer en volop recreatiemogelijkheden. Dankzij de centrale ligging nabij de A15 en A27 zijn steden zoals Utrecht, Rotterdam en Breda binnen 30 minuten te bereiken. Dalem biedt de perfecte balans tussen rust, natuur, historie en stedelijke gemakken!
                                
                                
                                    Overdracht
            - Vraagprijs
- 
                            € 569.500,- k.k.
                    
- Status
- beschikbaar
- Aanvaarding
- in overleg
Oppervlakten en inhoud
    
                    - Woonoppervlakte
- 110 m²
- Perceeloppervlakte
- 450 m²
- Inhoud
- 371 m³
- Bergruimte oppervlakte
- 34 m²
Indeling
    
                    - Aantal kamers
- 4
- Aantal slaapkamers
- 3
Buitenruimte
        
                            - Ligging
- in woonwijk
- Tuin
- achtertuin met een oppervlakte van 302 m² en is gelegen op het noordwesten
Bouw
    
        - Soort woning
- woonhuis
- Soort woonhuis
- eengezinswoning
- Type woonhuis
- twee onder een kapwoning
- Aantal woonlagen
- 3
- Bouwvorm
- bestaande bouw
- Bouwjaar
- 1939
- Huidige bestemming
- woonruimte
- Onderhoud binnen
- goed
- Onderhoud buiten
- goed
- Voorzieningen
- frans balkon, dakraam, zonnepanelen
- Isolatie
- dakisolatie, muurisolatie, grotendeels dubbelglas
Energie
    
                    - Energielabel
- 
                                    D
                
- Verwarming
- cv ketel, vloerverwarming gedeeltelijk
- Warm water
- cv ketel
- C.V.-ketel
- gas gestookte combi-ketel uit 2025 van Remeha, eigendom
 
                                
                                
                                
                                    Document(en)
                                                                                                                                                                                                                                                                                                                                                                                                                                                                    
                                    
                                    Plattegrond(en)
                                                                                                                         
                                                                                                                                                                 
                                                                                                                                                                 
                                                                                                                                                                 
                                                                                                                                                                