1062

klanten beoordelen ons met een

9,3

!
Mail ons
0
Meer informatie?
Venster sluiten ×
Meer informatie?
Mijn favorieten
Je hebt geen favorieten.
Venster sluiten ×

Zoeken

Robbert
Meer informatie?
0
1
2
3
4
5
6
7
8
9
10
11
12
13
14
15
16
17
18
19
20
21
22
23
24
25
26
27
28
29
30
31
32
33
34
35
36
37
4102 BD CULEMBORG

Bartokstraat 17

verkocht
Verkocht
Lines Lines
Robbert
Ook je woning succesvol verkopen?

Vraag een gratis waardebepaling aan.

0345-229300 info@vanekerenkuiper.nl
Bewaren

Ruime uitgebouwde gezinswoning met zonnige tuin!

Lees meer
  • Overzicht
  • Omschrijving
  • Kenmerken
  • Media
  • Plattegronden
  • Brochure

Omschrijving

Ruime uitgebouwde gezinswoning met zonnige tuin.

- Vier slaapkamers en voorzien van een energielabel C
- Begane grond vergroot met een uitbouw
- Veel onderhoud gepleegd de afgelopen paar jaar

Zoek je een huis met ruimte, en een praktische indeling en de kans om er helemaal jouw eigen plek van te maken? Dan is deze woning in Culemborg misschien wel wat voor jou. Dit is een fijne gezinswoning in een rustige straat, waar je zo voor de deur kunt parkeren. Een ideale plek om thuis te komen.

De basis...
Lees meer

Kenmerken

Soort object Eengezinswoning
Bouwjaar 1968
Aantal kamers 6
Woonoppervlakte 120 m2
Bekijk alle kenmerken

Omschrijving

Ruime uitgebouwde gezinswoning met zonnige tuin.

- Vier slaapkamers en voorzien van een energielabel C
- Begane grond vergroot met een uitbouw
- Veel onderhoud gepleegd de afgelopen paar jaar

Zoek je een huis met ruimte, en een praktische indeling en de kans om er helemaal jouw eigen plek van te maken? Dan is deze woning in Culemborg misschien wel wat voor jou. Dit is een fijne gezinswoning in een rustige straat, waar je zo voor de deur kunt parkeren. Een ideale plek om thuis te komen.

De basis is goed: een uitgebouwde woonkamer, een fijne keuken, vier slaapkamers en een zonnige achtertuin. Daarmee is het een ideale woning voor wie zin heeft om met een frisse blik aan de slag te gaan. Gewoon stap voor stap je eigen draai eraan geven, zonder dat het allemaal tegelijk hoeft.

Deze woning is in de afgelopen jaren flink verbouwd en verbeterd. Onder meer is er een betonvloer met vloerverwarming op de gehele begane grond aangebracht. De fundering van de uitbouw is verbeterd en het platte dak is vervangen. De ramen en kunststof kozijnen zijn voorzien van isolerende beglazing en er zijn op de eerste verdieping rolluiken aangebracht. 

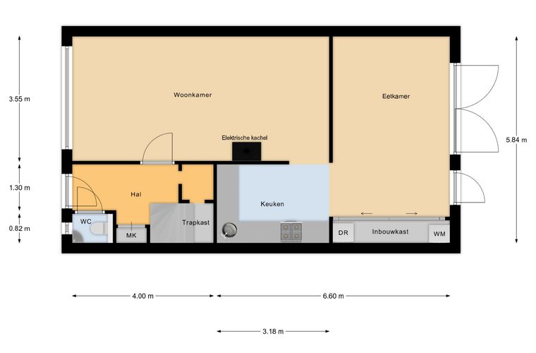
De globale indeling:

Begane grond: entree met hal, toilet met fonteintje, meterkast, trapkast, toegang tot woonkamer en trapopgang eerste verdieping; lichte woonkamer met elektrische haard, doorloop naar keuken en eetkamer in de uitbouw; keuken voorzien van 5-pits gasfornuis, spoelbak, combimagnetron, vaatwasser, koelkast en vriezer; eetkamer met openslaande deuren naar de tuin; inbouwkast met witgoedaansluitingen en tweede deur naar de achtertuin.

Eerste verdieping: overloop met toegang tot de drie slaapkamers en badkamer; badkamer voorzien van toilet, wastafelmeubel en ligbad/douche.

Tweede verdieping: voorzolder met knieschotten, cv-installatie en witgoedaansluitingen; ruime zolderkamer over de volledige breedte van de woning, vergroot met dakkapel.

Goed om te weten:
- Gedeeltelijk HR+++ glas
- Circa 120 m² woonoppervlakte
- Achtertuin is gelegen op het zuidwesten
- Voldoende parkeergelegenheid voor de deur

Ligging:
Culemborg, een charmante stad met ruim 29.000 inwoners, combineert een historische sfeer met moderne voorzieningen. Het gezellige stadscentrum biedt verrassend veel toffe winkels, gezellige eettentjes en een bruisende sfeer. De stad heeft een eigen polikliniek, een bibliotheek en een stadstheater, evenals uitgebreide sportmogelijkheden zoals voetbal, hockey, tennis en een zwembad.
Omringd door het prachtige rivierengebied met uitgestrekte uiterwaarden en Landgoed Mariënwaerdt met de bekende Appeldijk, is Culemborg een paradijs voor fiets- en natuurliefhebbers. Dankzij het treinstation en de nabijheid van de A2 zijn steden zoals Utrecht, Den Bosch en de Randstad eenvoudig te bereiken. Culemborg biedt het beste van historie, natuur en moderne voorzieningen in één!

Overdracht

Status
verkocht
Aanvaarding
in overleg

Oppervlakten en inhoud

Woonoppervlakte
120 m²
Perceeloppervlakte
150 m²
Inhoud
420 m³
Bergruimte oppervlakte
8 m²

Indeling

Aantal kamers
6
Aantal slaapkamers
4

Buitenruimte

Ligging
in woonwijk
Tuin
achtertuin met een oppervlakte van 51 m² en is gelegen op het zuidwesten

Bouw

Soort woning
woonhuis
Soort woonhuis
eengezinswoning
Type woonhuis
tussenwoning
Aantal woonlagen
3
Bouwvorm
bestaande bouw
Bouwjaar
1968
Huidige bestemming
woonruimte
Onderhoud binnen
redelijk
Onderhoud buiten
redelijk
Voorzieningen
rolluiken, dakraam, glasvezel kabel, natuurlijke ventilatie

Energie

Energielabel
C
Verwarming
cv ketel
Warm water
cv ketel
C.V.-ketel
gas gestookte combi-ketel uit 2018 van Vaillant ecoTEC plus 25-30, eigendom

Document(en)



Plattegrond(en)

Plattegrond 1 Plattegrond 2 Plattegrond 3

Enthousiast geworden? Dan is het tijd om door te pakken!

Maak een afspraak en plan een bezichtiging.

0345-229300 info@vanekerenkuiper.nl
Doorpakken!
Venster sluiten
Bartokstraat 17, afbeelding 0
Bartokstraat 17, afbeelding 1
Bartokstraat 17, afbeelding 2
Bartokstraat 17, afbeelding 3
Bartokstraat 17, afbeelding 4
Bartokstraat 17, afbeelding 5
Bartokstraat 17, afbeelding 6
Bartokstraat 17, afbeelding 7
Bartokstraat 17, afbeelding 8
Bartokstraat 17, afbeelding 9
Bartokstraat 17, afbeelding 10
Bartokstraat 17, afbeelding 11
Bartokstraat 17, afbeelding 12
Bartokstraat 17, afbeelding 13
Bartokstraat 17, afbeelding 14
Bartokstraat 17, afbeelding 15
Bartokstraat 17, afbeelding 16
Bartokstraat 17, afbeelding 17
Bartokstraat 17, afbeelding 18
Bartokstraat 17, afbeelding 19
Bartokstraat 17, afbeelding 20
Bartokstraat 17, afbeelding 21
Bartokstraat 17, afbeelding 22
Bartokstraat 17, afbeelding 23
Bartokstraat 17, afbeelding 24
Bartokstraat 17, afbeelding 25
Bartokstraat 17, afbeelding 26
Bartokstraat 17, afbeelding 27
Bartokstraat 17, afbeelding 28
Bartokstraat 17, afbeelding 29
Bartokstraat 17, afbeelding 30
Bartokstraat 17, afbeelding 31
Bartokstraat 17, afbeelding 32
Bartokstraat 17, afbeelding 33
Bartokstraat 17, afbeelding 34
Bartokstraat 17, afbeelding 35
Bartokstraat 17, afbeelding 36
Bartokstraat 17, afbeelding 37
Contact