1062

klanten beoordelen ons met een

9,3

!
Mail ons
0
Meer informatie?
Venster sluiten ×
Meer informatie?
Mijn favorieten
Je hebt geen favorieten.
Venster sluiten ×

Zoeken

Robbert
Meer informatie?
0
1
2
3
4
5
6
7
8
9
10
11
12
13
14
15
16
17
18
19
20
21
22
23
24
25
26
27
28
29
30
31
32
33
34
35
36
37
38
39
40
41
42
43
44
45
46
4153 AP BEESD

Achterstraat 1

verkocht
Verkocht
Lines Lines
Robbert
Ook je woning succesvol verkopen?

Vraag een gratis waardebepaling aan.

0345-229300 info@vanekerenkuiper.nl
Bewaren

Verrassend ruim appartement met dakterras in het dorpshart van Beesd!

Lees meer
  • Overzicht
  • Omschrijving
  • Kenmerken
  • Media
  • Plattegronden
  • Brochure

Omschrijving

Verrassend ruim appartement met dakterras in het dorpshart van Beesd!

- Stijlvolle woonkeuken met schiereiland
- Extra kamer ideaal als thuiswerkplek of slaapkamer
- Heerlijk dakterras en een carport met berging

Een appartement met de ruimte van een eengezinswoning? Jazeker. Deze woning, verdeeld over twee verdiepingen, verrast je met zijn moderne afwerking, slimme indeling én buitenruimte. Je komt binnen via je eigen voortuin met carport en berging, en vervolgens trap je het wooncomfort letterlijk tegemoet. Op de eerste verdieping vind je een strakke leefruimte met een eigentijdse woonkeuken als blikvanger. De woonkamer...
Lees meer

Kenmerken

Soort object Bovenwoning
Bouwjaar 1988
Aantal kamers 5
Woonoppervlakte 107 m2
Bekijk alle kenmerken

Omschrijving

Verrassend ruim appartement met dakterras in het dorpshart van Beesd!

- Stijlvolle woonkeuken met schiereiland
- Extra kamer ideaal als thuiswerkplek of slaapkamer
- Heerlijk dakterras en een carport met berging

Een appartement met de ruimte van een eengezinswoning? Jazeker. Deze woning, verdeeld over twee verdiepingen, verrast je met zijn moderne afwerking, slimme indeling én buitenruimte. Je komt binnen via je eigen voortuin met carport en berging, en vervolgens trap je het wooncomfort letterlijk tegemoet. Op de eerste verdieping vind je een strakke leefruimte met een eigentijdse woonkeuken als blikvanger. De woonkamer is sfeervol en licht, en via de extra kamer loop je zo het dakterras op – een ideale plek om van de zon te genieten of ’s avonds nog even buiten te zitten. En boven? Daar wachten twee fijne slaapkamers, veel bergruimte en een royale overloop. Alles wat je nodig hebt, zit hier onder één dak! En de ligging? In het dorpshart! De supermarkt, bakker en slager zijn letterlijk om de hoek!

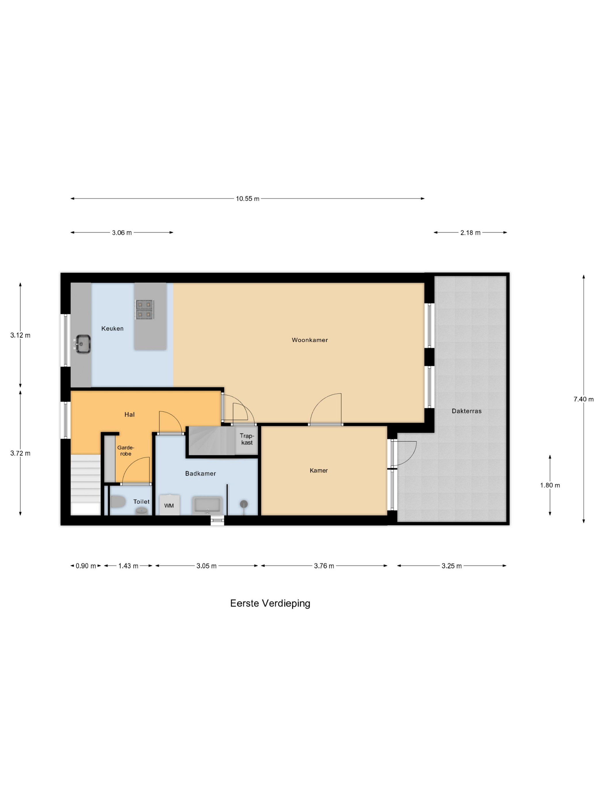
De globale indeling:

Begane grond; voortuin met carport en berging; entree met trapopgang naar boven; inpandige berging met cv-opstelling.

Eerste verdieping; hal met garderobe en toilet; badkamer met wastafel, douche en witgoedaansluitingen; trapopgang en toegang tot de woonkamer; moderne keuken met schiereiland en inbouwapparatuur; woonkamer met trapkast & een  aangrenzende extra kamer (thuiswerkplek of slaapkamer) met toegang tot dakterras.

Tweede verdieping; ruime overloop met dakraam en vaste kast; slaapkamer voorzijde met knieschotberging; slaapkamer achterzijde met knieschotberging.

Goed om te weten:
- Eigen entree en veel privacy
- Energielabel B
- Twee bergingen, waarvan één inpandig en totaal circa 12 m² bergruimte
- Eerste verdieping gemoderniseerd en instapklaar
- In de fotoserie is een foto van de voortuin met haagjes opgenomen, deze zijn op dit moment nog niet aanwezig maar zullen door de gemeente in de loop van dit jaar worden geplant. 
 
Ligging: Beesd is een gezellig dorp in de Betuwe met ruim 3.400 inwoners. Het dorp beschikt over een supermarkt, bakker, basisschool, kinderopvang, restaurants en diverse sportverenigingen. Dankzij het station en de ligging aan de A2 is Beesd goed bereikbaar. In de directe omgeving vind je prachtige natuur, zoals het landgoed Mariënwaerdt en de rivier de Linge. Beesd combineert een dorps karakter met centrale ligging – een fijne plek om te wonen.

Overdracht

Status
verkocht
Aanvaarding
in overleg

VvE checklist

Inschrijving KVK
Ja
Jaarlijkse vergadering
Nee
Periodieke bijdrage
Nee
Reservefonds aanwezig
Nee
Onderhoudsplan
Nee
Opstalverzekering
Ja

Oppervlakten en inhoud

Woonoppervlakte
107 m²
Inpandige ruimte oppervlakte
6 m²
Bergruimte oppervlakte
6 m²
Buitenruimte oppervlakte
19 m²

Indeling

Aantal kamers
5
Aantal slaapkamers
3

Buitenruimte

Ligging
in centrum, in woonwijk
Tuin
zonneterras met een oppervlakte van 14 m² en is gelegen op het zuidoosten

Bouw

Soort woning
appartement
Soort appartement
bovenwoning
Aantal woonlagen
2
Bouwvorm
bestaande bouw
Bouwjaar
1988
Open portiek
nee
Huidige bestemming
woonruimte
Onderhoud binnen
redelijk_tot_goed
Onderhoud buiten
redelijk_tot_goed
Voorzieningen
tv kabel, dakraam

Energie

Energielabel
B
Verwarming
cv ketel
Warm water
cv ketel
C.V.-ketel
gas gestookte combi-ketel uit 2024 van Intergas, eigendom

Document(en)



Plattegrond(en)

Plattegrond 1 Plattegrond 2

Enthousiast geworden? Dan is het tijd om door te pakken!

Maak een afspraak en plan een bezichtiging.

0345-229300 info@vanekerenkuiper.nl
Doorpakken!
Venster sluiten
Achterstraat 1, afbeelding 0
Achterstraat 1, afbeelding 1
Achterstraat 1, afbeelding 2
Achterstraat 1, afbeelding 3
Achterstraat 1, afbeelding 4
Achterstraat 1, afbeelding 5
Achterstraat 1, afbeelding 6
Achterstraat 1, afbeelding 7
Achterstraat 1, afbeelding 8
Achterstraat 1, afbeelding 9
Achterstraat 1, afbeelding 10
Achterstraat 1, afbeelding 11
Achterstraat 1, afbeelding 12
Achterstraat 1, afbeelding 13
Achterstraat 1, afbeelding 14
Achterstraat 1, afbeelding 15
Achterstraat 1, afbeelding 16
Achterstraat 1, afbeelding 17
Achterstraat 1, afbeelding 18
Achterstraat 1, afbeelding 19
Achterstraat 1, afbeelding 20
Achterstraat 1, afbeelding 21
Achterstraat 1, afbeelding 22
Achterstraat 1, afbeelding 23
Achterstraat 1, afbeelding 24
Achterstraat 1, afbeelding 25
Achterstraat 1, afbeelding 26
Achterstraat 1, afbeelding 27
Achterstraat 1, afbeelding 28
Achterstraat 1, afbeelding 29
Achterstraat 1, afbeelding 30
Achterstraat 1, afbeelding 31
Achterstraat 1, afbeelding 32
Achterstraat 1, afbeelding 33
Achterstraat 1, afbeelding 34
Achterstraat 1, afbeelding 35
Achterstraat 1, afbeelding 36
Achterstraat 1, afbeelding 37
Achterstraat 1, afbeelding 38
Achterstraat 1, afbeelding 39
Achterstraat 1, afbeelding 40
Achterstraat 1, afbeelding 41
Achterstraat 1, afbeelding 42
Achterstraat 1, afbeelding 43
Achterstraat 1, afbeelding 44
Achterstraat 1, afbeelding 45
Achterstraat 1, afbeelding 46
Contact